HRA ARCHITECTURE
  • HOME
  • PROJECTS
  • BLOG
  • CONTACT
Select Page

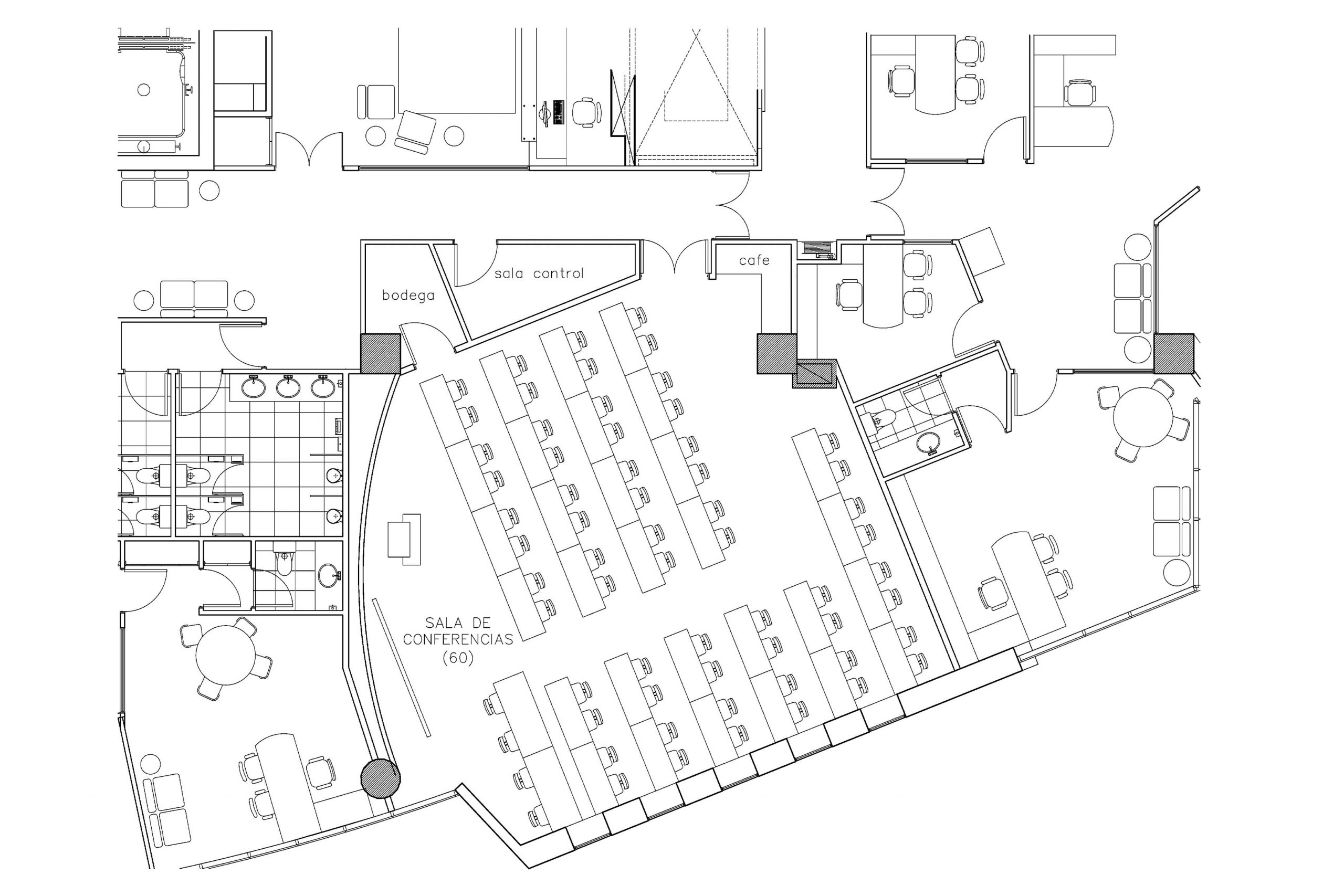
SUPER INTENDENCIA DE SALUD

AUDITORIUM

– Santiago, Chile, 2013

– Auditorium interior architecture & lighting design, 95 m2.

← Previous project Next project →

All rights reserved HRA Architecture © 2022 Implemented by www.partnerdigital.cl