HRA ARCHITECTURE
  • HOME
  • PROJECTS
  • BLOG
  • CONTACT
Select Page

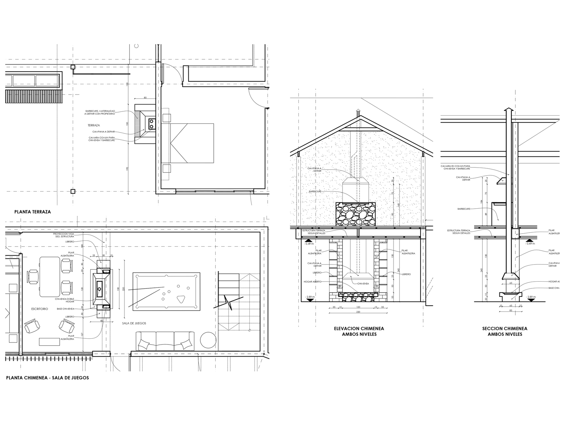
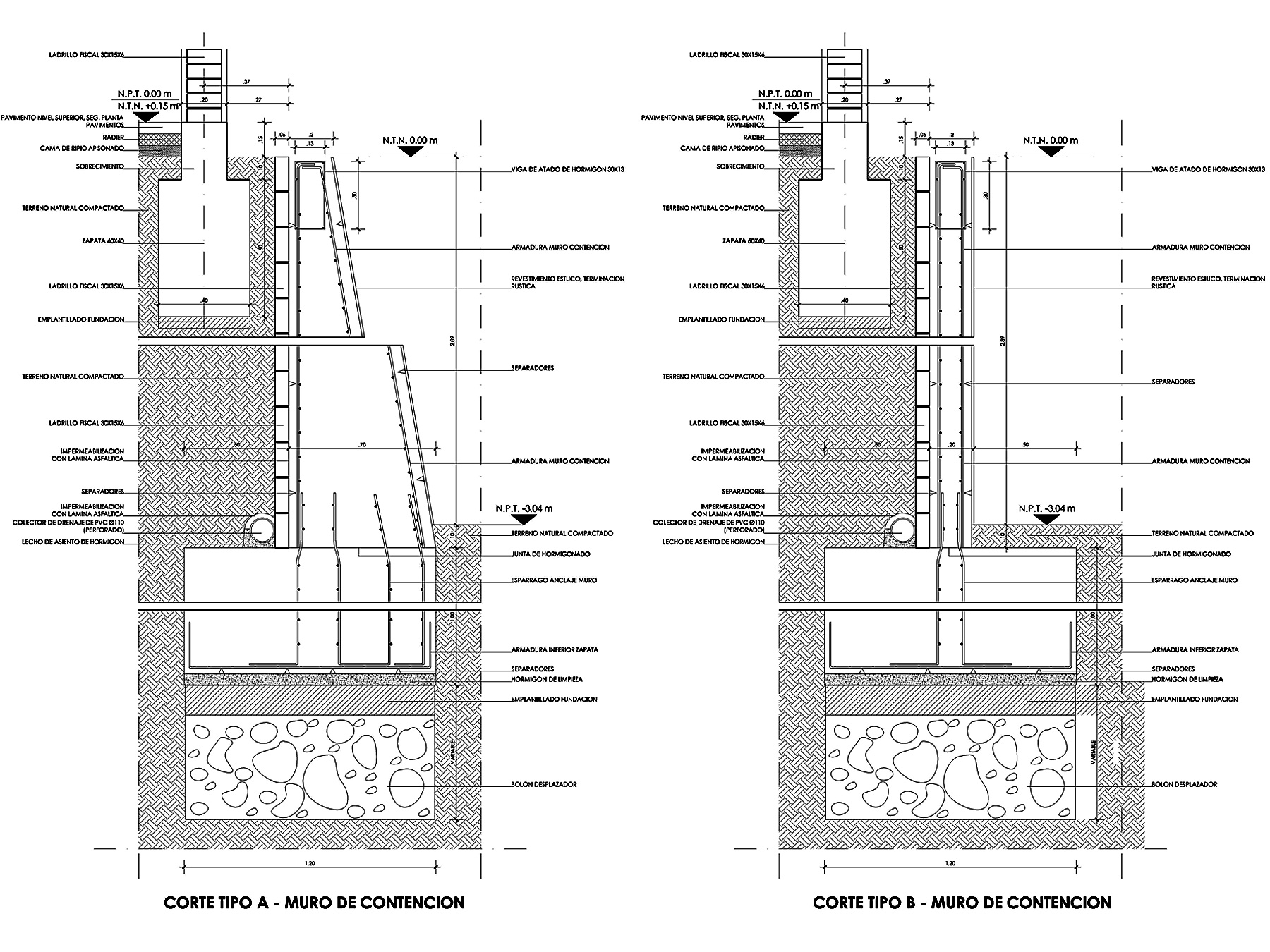
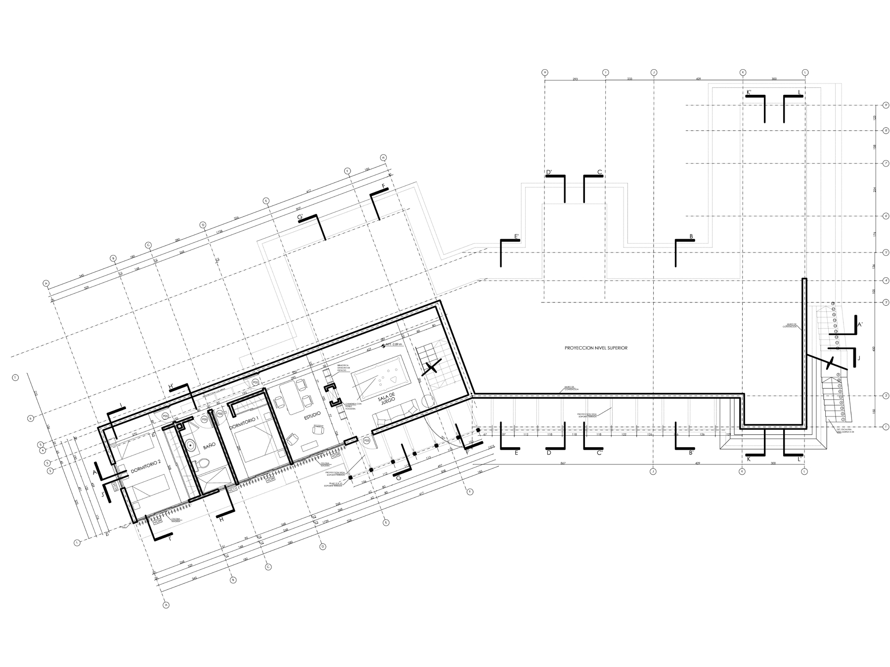
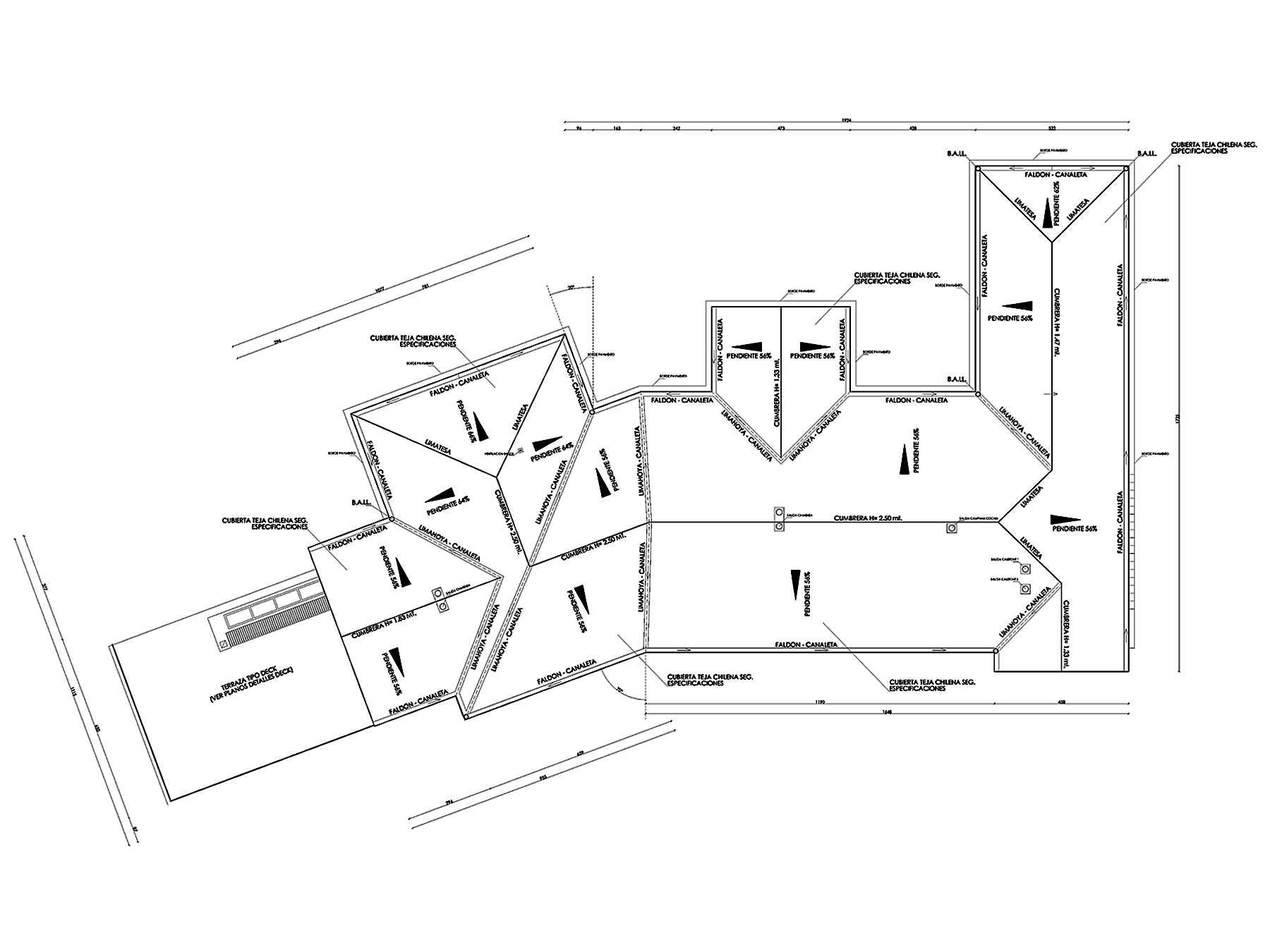
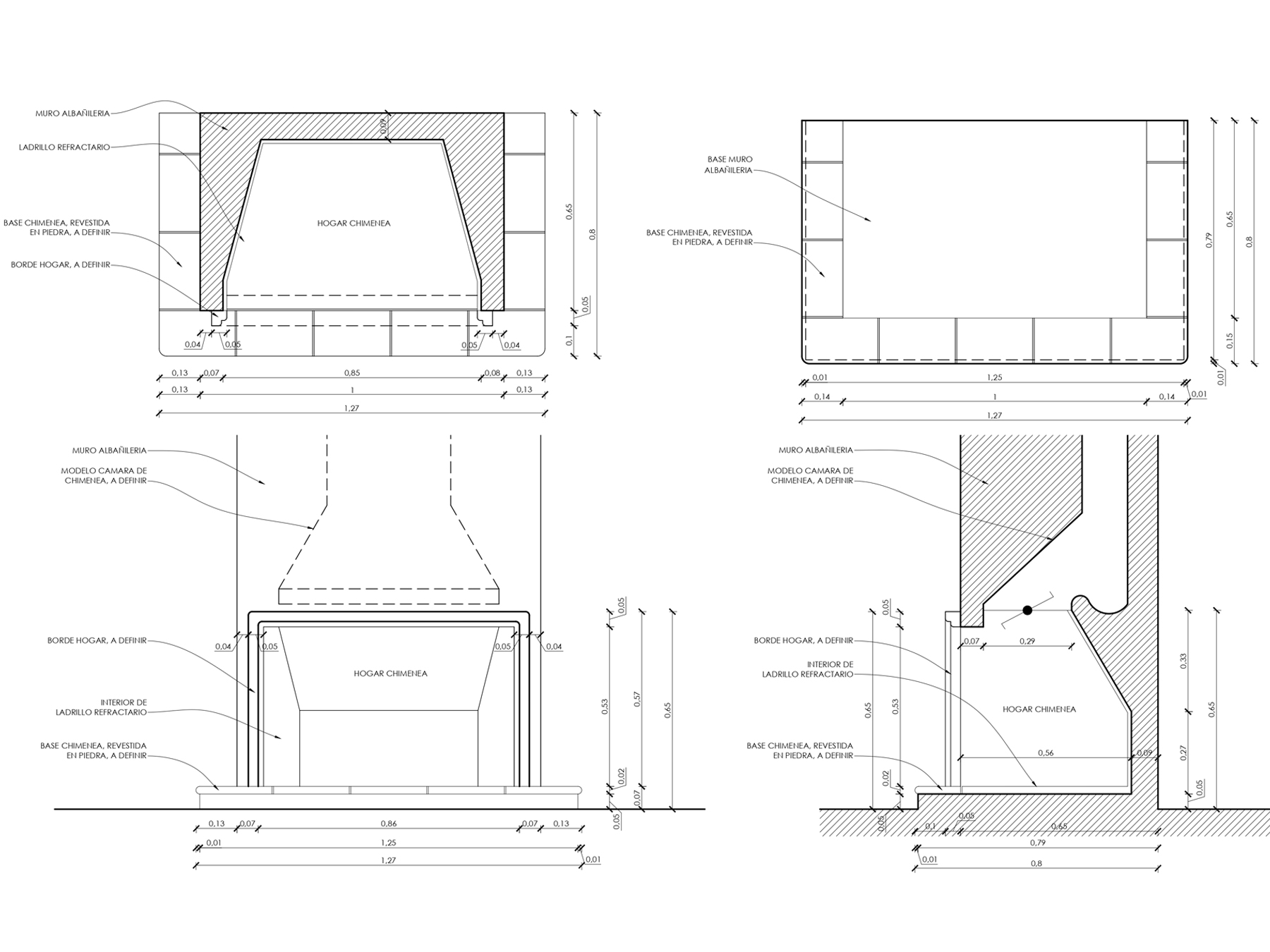
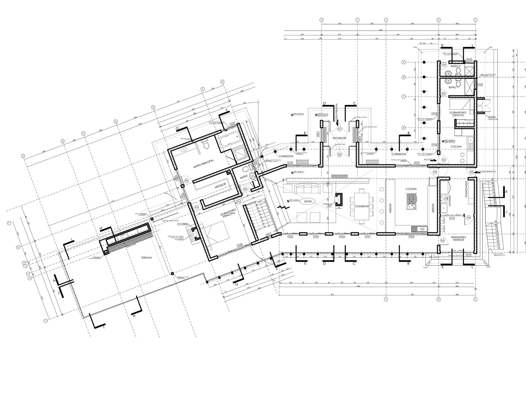
CASA EL PANGAL

RESIDENTIAL

– El Pangal, V Región, Chile, 2006.

– Country house, 320 m2.

← Previous project Next project →

All rights reserved HRA Architecture © 2022 Implemented by www.partnerdigital.cl