HRA ARCHITECTURE
  • HOME
  • PROJECTS
  • BLOG
  • CONTACT
Select Page

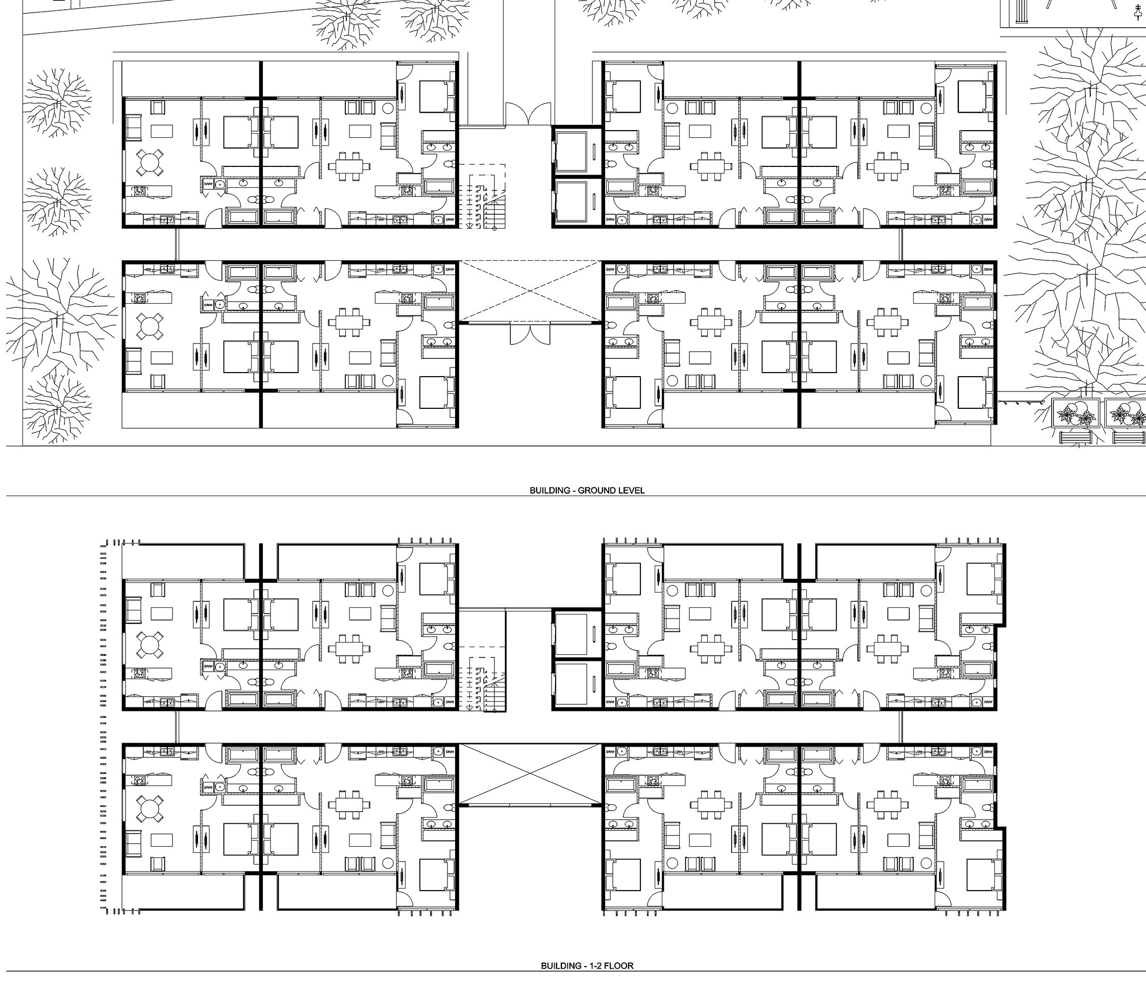
JAMISONTOWN SERVICED APARTMENTS

MIXED DEVELOPMENT

Collab with D+R Architects

– Jamisontown, Sydney, NSW, Australia 2020

– Mixed development, 26.000 m2

← Previous project Next project →

All rights reserved HRA Architecture © 2022 Implemented by www.partnerdigital.cl