HRA ARCHITECTURE
  • HOME
  • PROJECTS
  • BLOG
  • CONTACT
Select Page

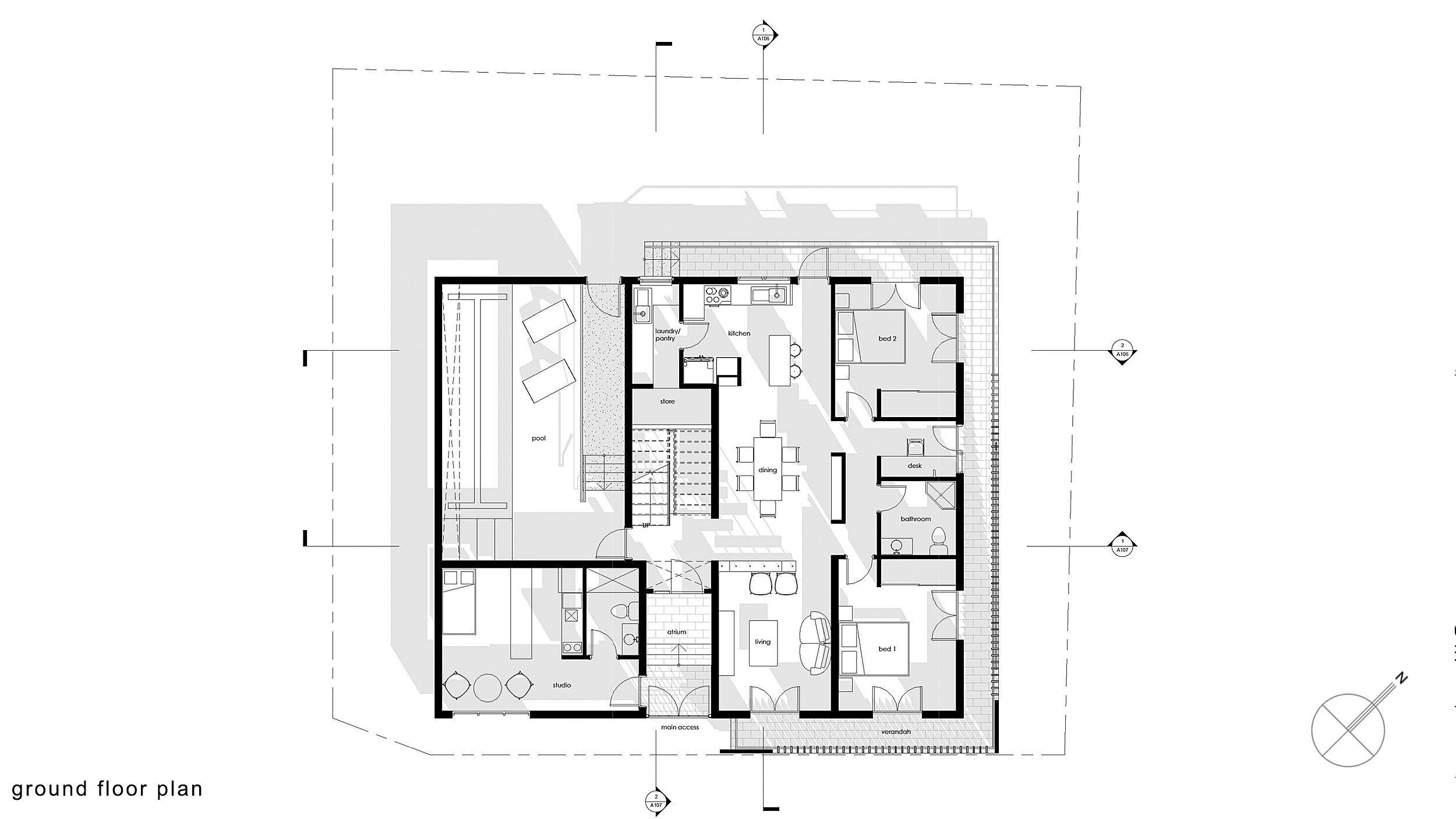
KIATO RESIDENCE, GREECE

HOUSE RENOVATION

– Kiato, Greece, 2022.

– Renovation of an existing detached house, 188 M2

← Previous project Next project →

All rights reserved HRA Architecture © 2022 Implemented by www.partnerdigital.cl