HRA ARCHITECTURE
  • HOME
  • PROJECTS
  • BLOG
  • CONTACT
Select Page

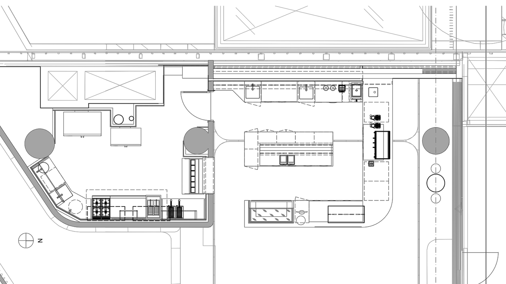
MIO ESPRESSO

Hospitality

– Liverpool Civic Place, Liverpool, NSW, Australia, year 2025

– Interior architecture for a cafe. 55m2

← Previous project Next project →

All rights reserved HRA Architecture © 2022 Implemented by www.partnerdigital.cl