HRA ARCHITECTURE
  • HOME
  • PROJECTS
  • BLOG
  • CONTACT
Select Page

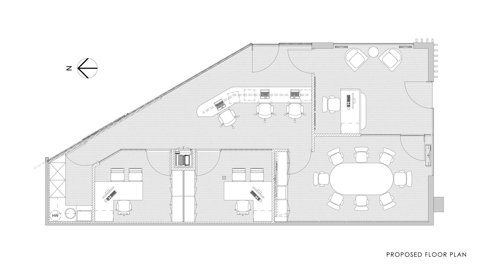
REAL HOMES REALTY

OFFICE

– Kellyville, NSW, Australia, 2023

– Interior architecture for a real estate office. 81m2

← Previous project Next project →

All rights reserved HRA Architecture © 2022 Implemented by www.partnerdigital.cl