HRA ARCHITECTURE
  • HOME
  • PROJECTS
  • BLOG
  • CONTACT
Select Page

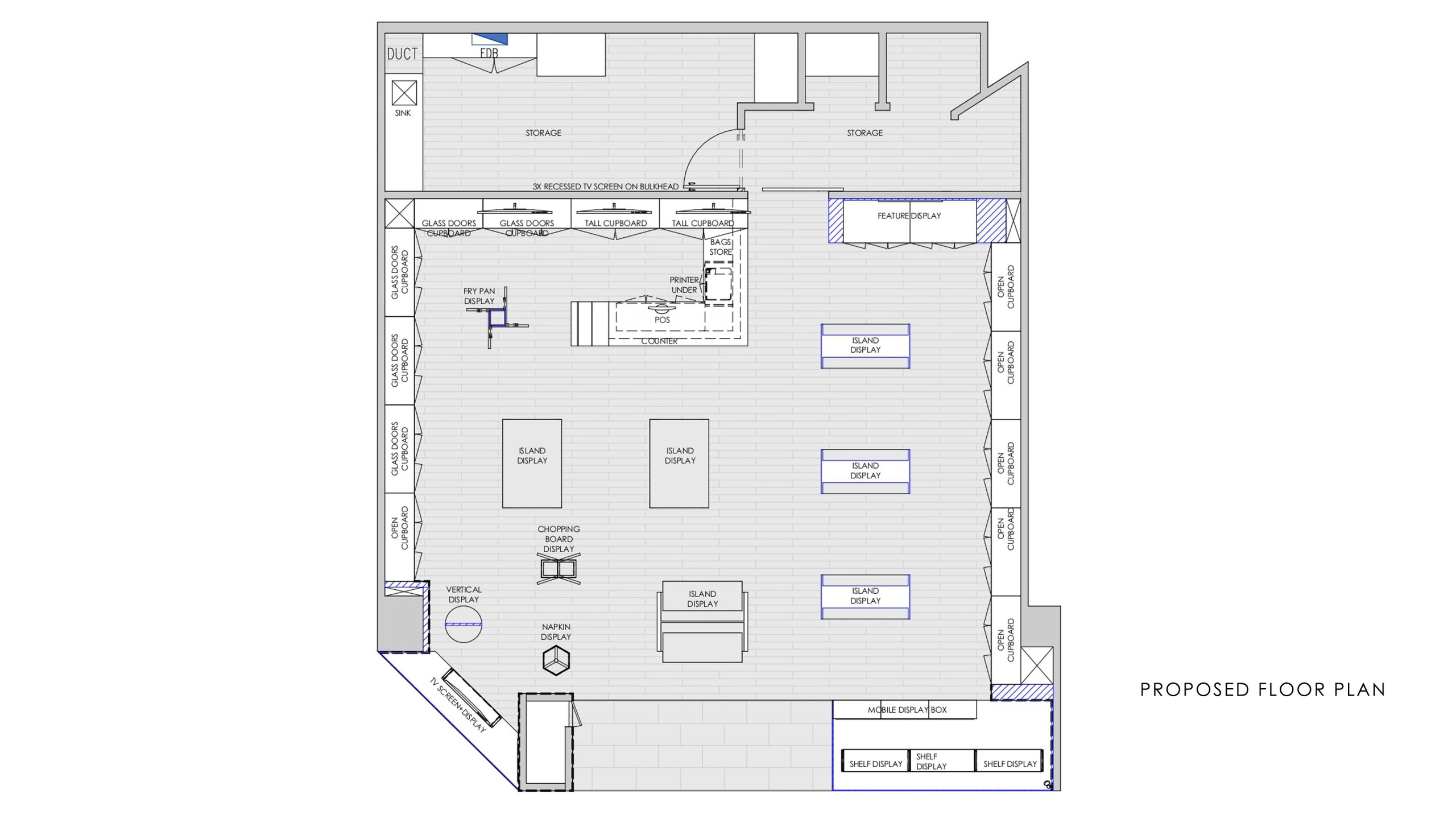
STEEL & GLASS MACQUARIE

Retail

– Macquarie Centre, Macquarie Park, Sydney, Australia, 2023

– Interior architecture for a kitchenware retail shop. 95m2

← Previous project Next project →

All rights reserved HRA Architecture © 2022 Implemented by www.partnerdigital.cl