HRA ARCHITECTURE
  • HOME
  • PROJECTS
  • BLOG
  • CONTACT
Select Page

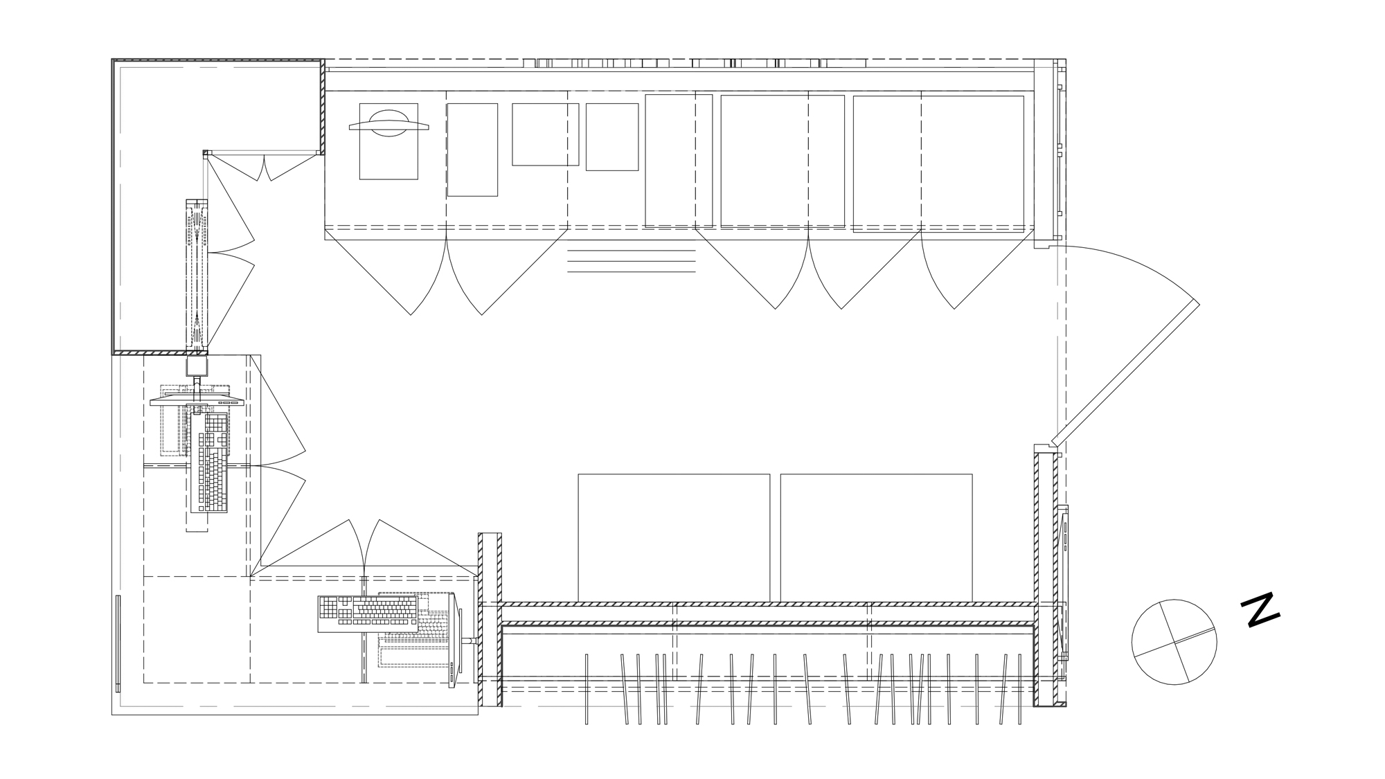
TEES HUB, CASUARINA, NT.

KIOSK

– Casuarina Square shopping centre, Casuarina, NT, Australia, year, 2025

– Print on demand kiosk, retail, 13m2

← Previous project Next project →

All rights reserved HRA Architecture © 2022 Implemented by www.partnerdigital.cl