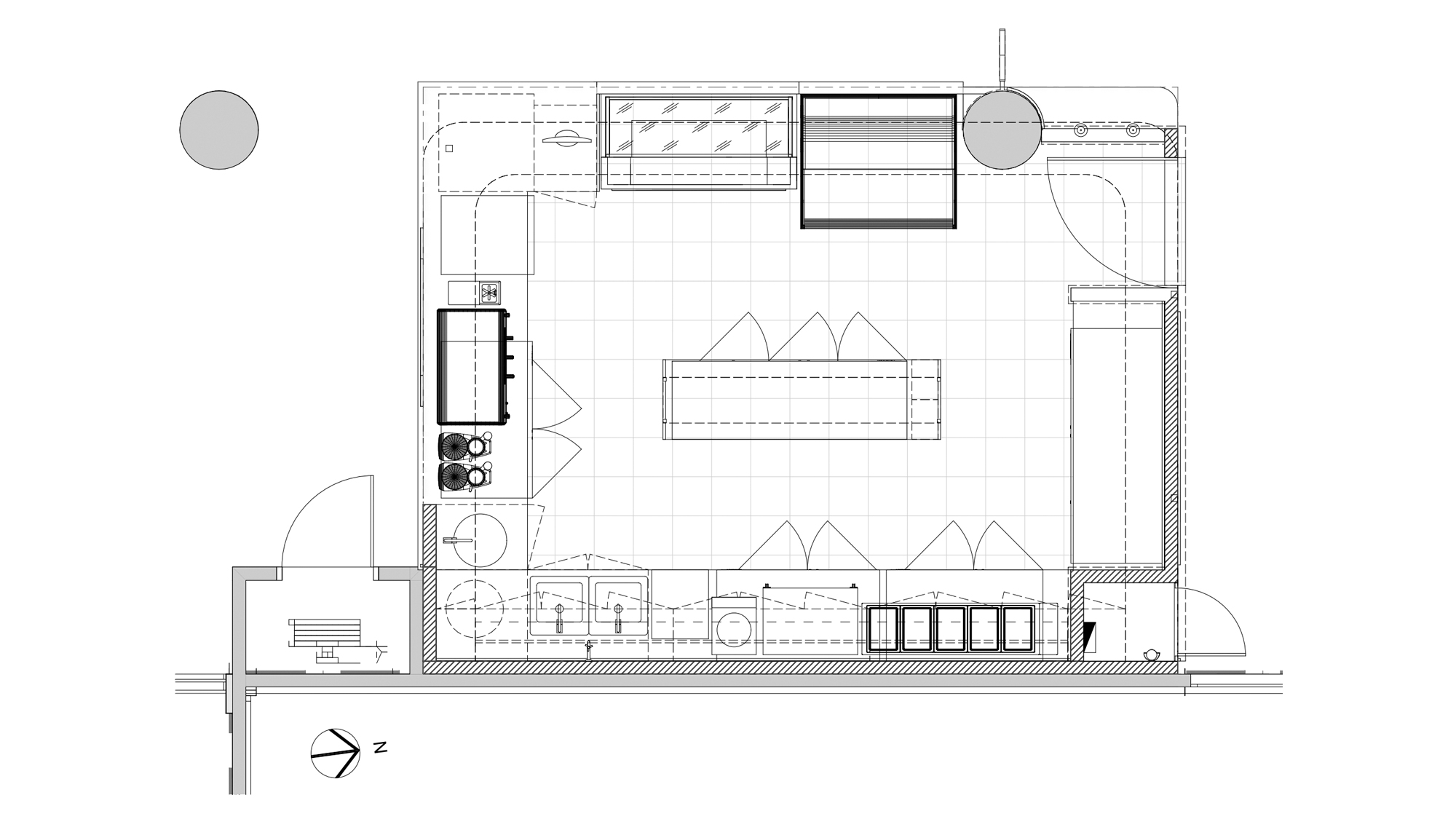
THE SMELLY CHEESECAKE STANHOPE GARDENS
Hospitality
– Stanhope Village Shopping Centre, Stanhope Gardens, NSW, Australia, year 2024
– Interior architecture for a kiosk, takeaway food. 26m2
Hospitality
– Stanhope Village Shopping Centre, Stanhope Gardens, NSW, Australia, year 2024
– Interior architecture for a kiosk, takeaway food. 26m2