TOWNHOUSE EXTENSION + OUTDOOR BBQ AREA
RESIDENTIAL
– Vitacura, Santiago, RM, Chile, 2024
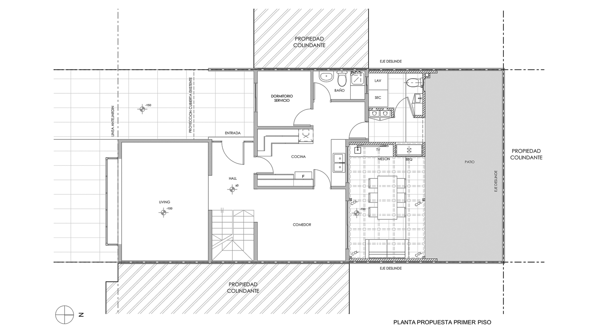
– Townhouse ground floor extension + outdoor pergola structure with BBQ area
RESIDENTIAL
– Vitacura, Santiago, RM, Chile, 2024
– Townhouse ground floor extension + outdoor pergola structure with BBQ area