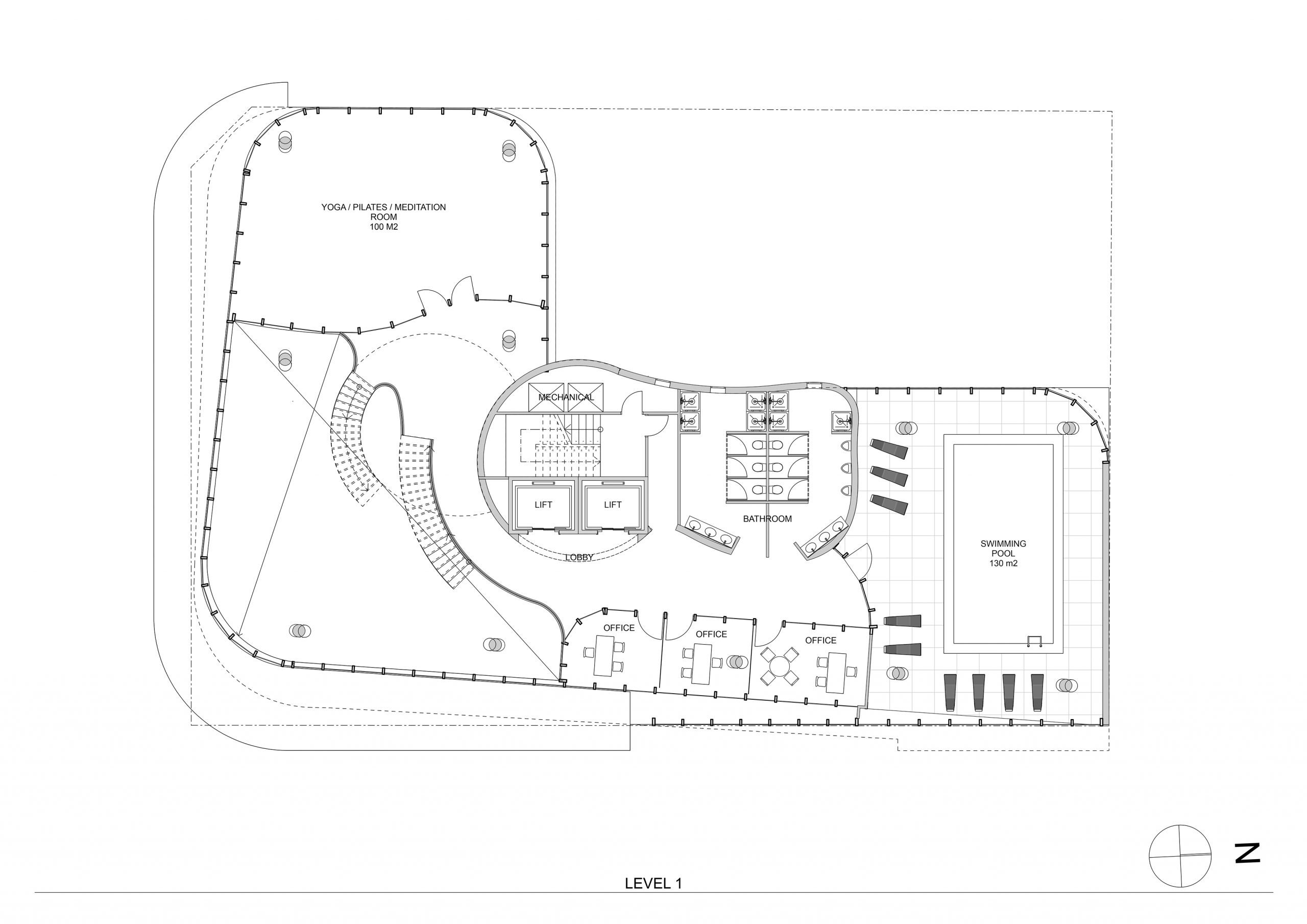
BUILDING FOR HEALING AND WELLNESS

MIXED DEVELOPMENT

– Surry Hills, Sydney, Australia, 2021

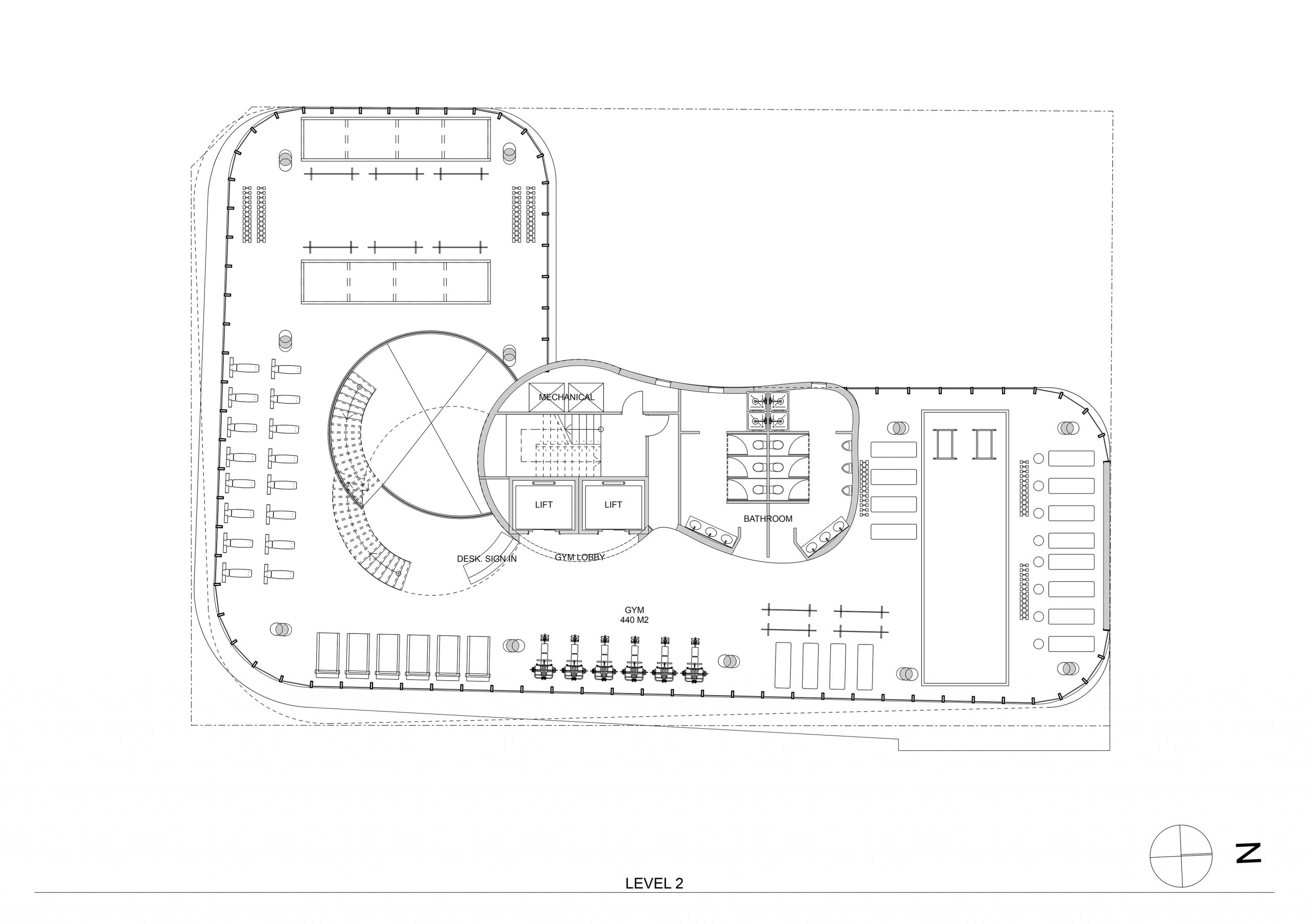
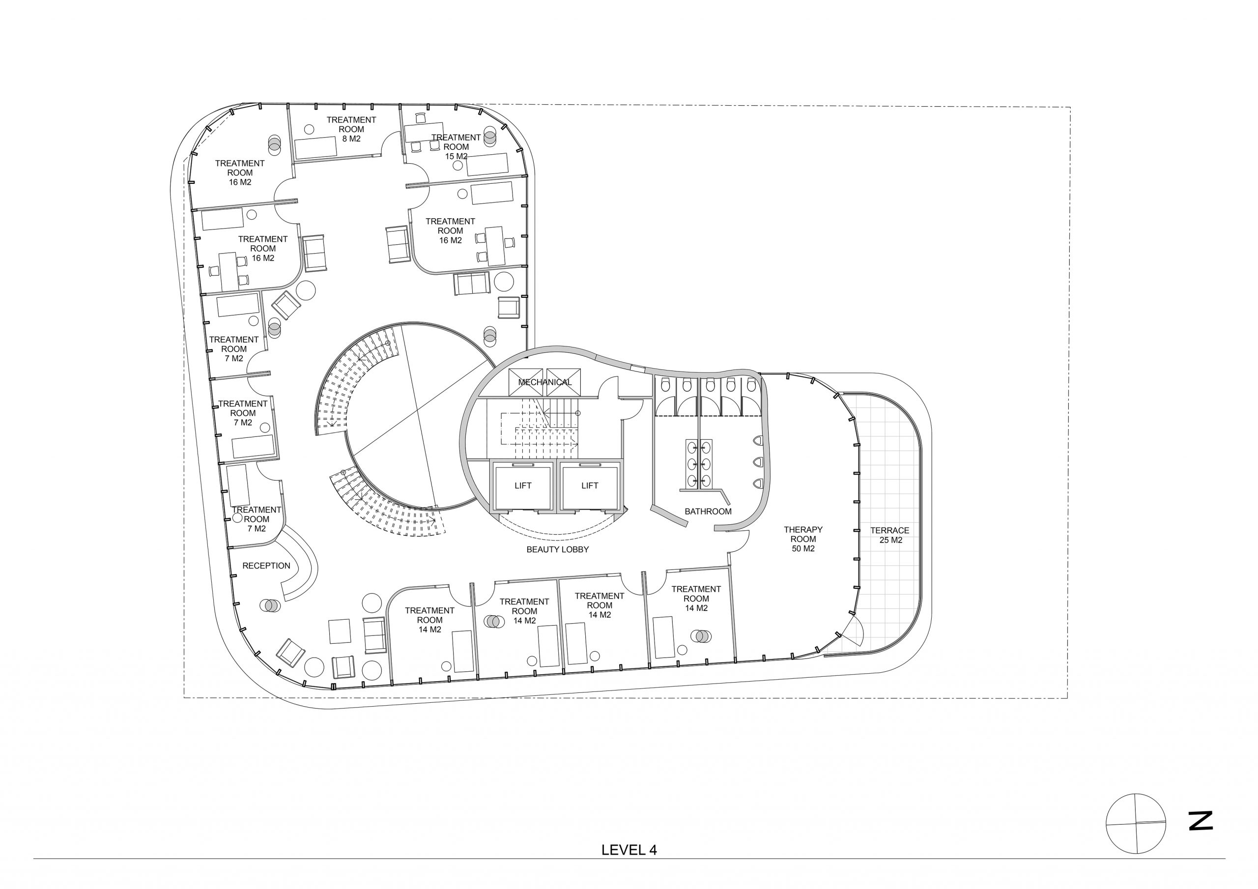
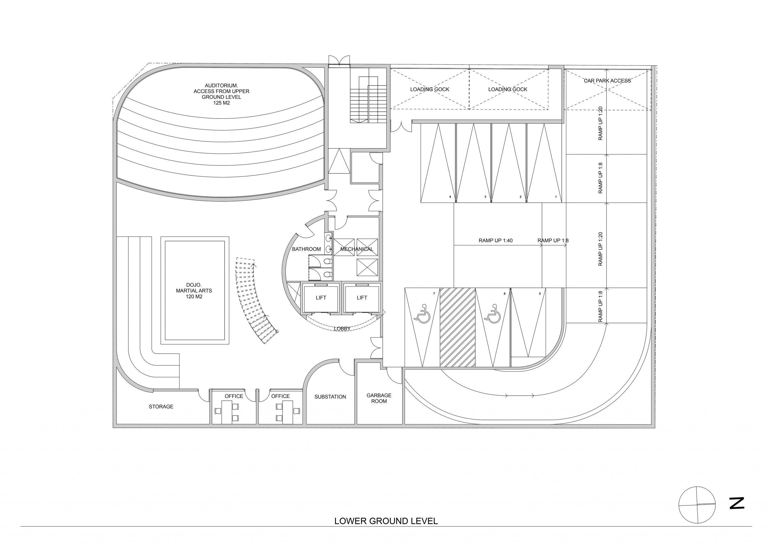
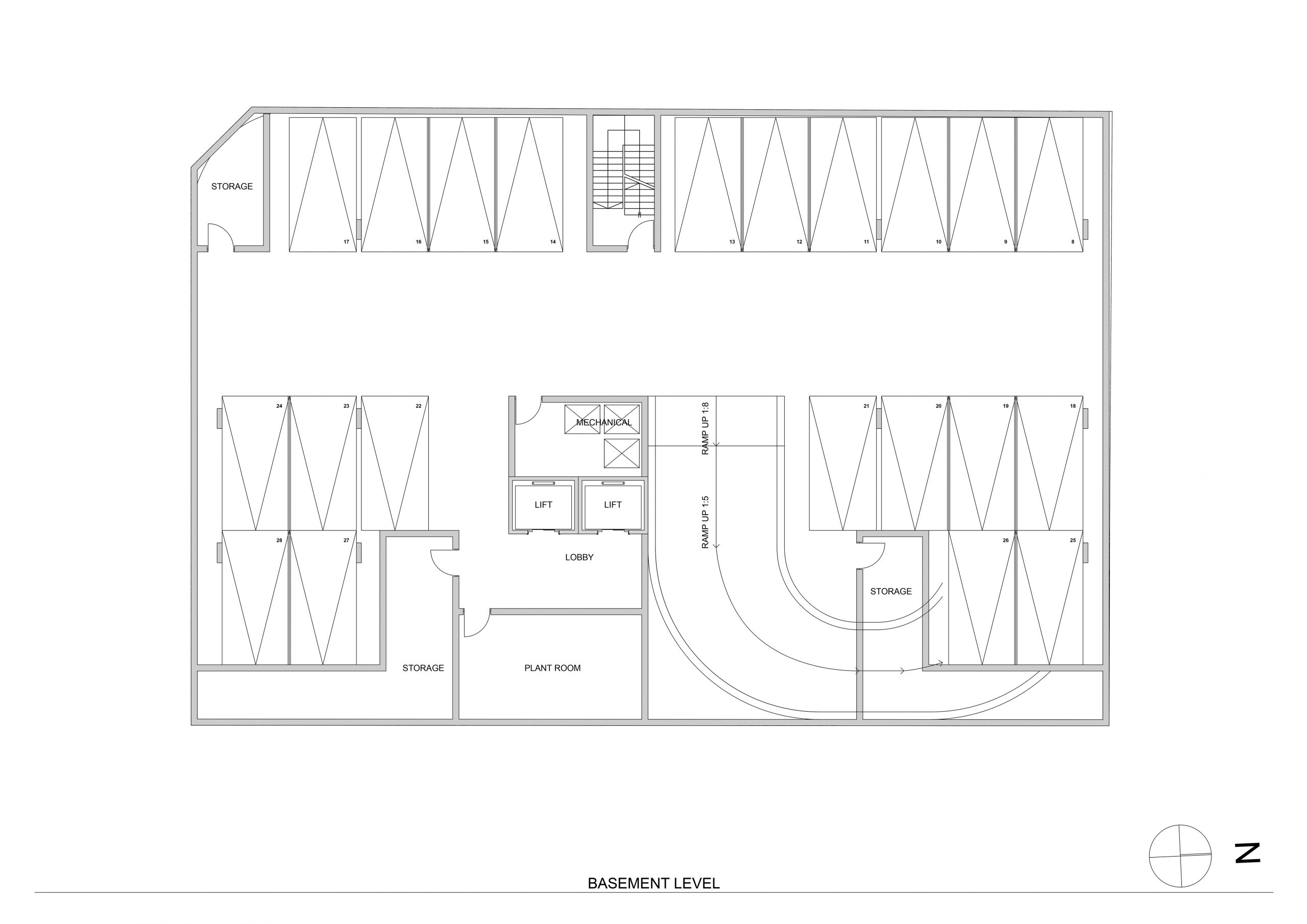
– Mixed use development. The main spaces are designed as dojo for martial arts, gym, swimming pool, pilates, yoga, meditation, beauty salon, laser treatments, cafe-restaurant, rooftop bar and multiple outdoor and terrace spaces for workout and exercise. 2500 M2