MATSAPHA RESIDENTIAL COMPLEX. STAGE 1B+2
RESIDENTIAL
– Matsapha, Eswatini (Swaziland), 2021
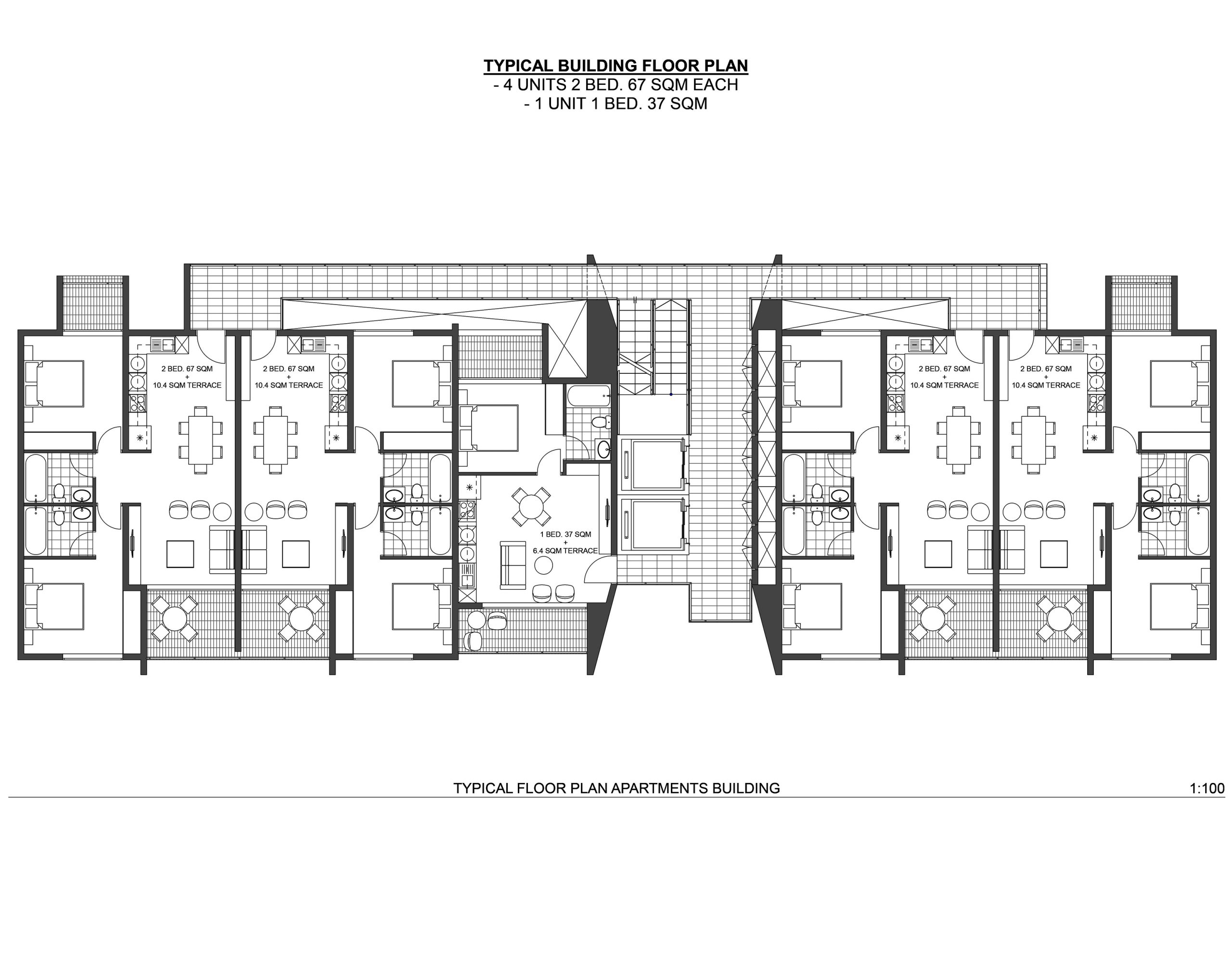
– Residential Complex. 40 Townhouses + 160 Apartments, 55.000 M2
RESIDENTIAL
– Matsapha, Eswatini (Swaziland), 2021
– Residential Complex. 40 Townhouses + 160 Apartments, 55.000 M2