HRA ARCHITECTURE
  • HOME
  • PROJECTS
  • BLOG
  • CONTACT
Select Page

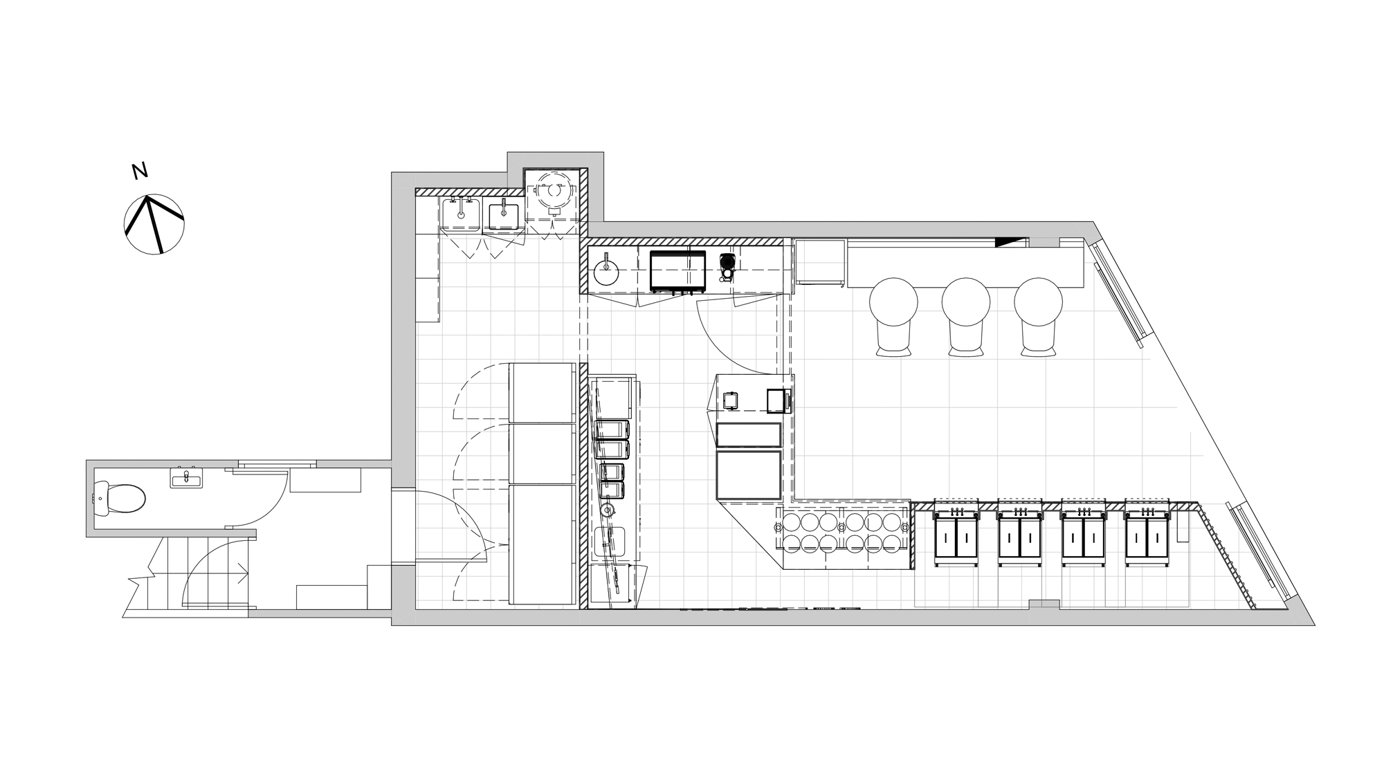
C9 CHOCOLATE & GELATO COLLAROY

HOSPITALITY

– Collaroy, NSW, Australia, year, 2025

– Interior architecture for a gelato shop and dessert bar, 48m2

← Previous project Next project →

All rights reserved HRA Architecture © 2022 Implemented by www.partnerdigital.cl