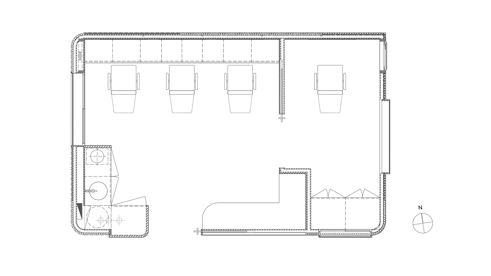
GLAMIFY SHELLHARBOUR
Kiosk design / retail
– Stockland Shellharbour Shopping Centre, Shellharbour, NSW, Australia, year, 2025
– Cosmetic treatment kiosk design, 22m2
Kiosk design / retail
– Stockland Shellharbour Shopping Centre, Shellharbour, NSW, Australia, year, 2025
– Cosmetic treatment kiosk design, 22m2