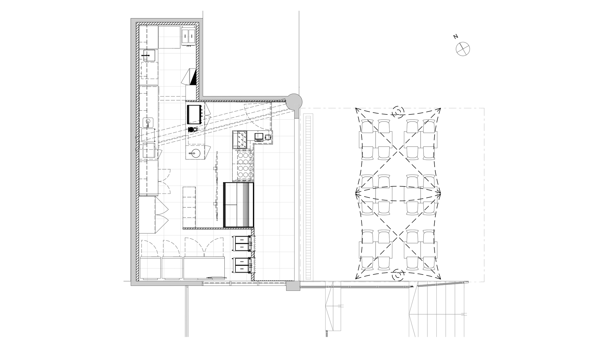
C9 CHOCOLATE & GELATO LIVERPOOL
HOSPITALITY
– Westfield Liverpool, Liverpool, NSW, Australia, year 2026
– Interior architecture for a gelato shop and dessert bar, 46m2
HOSPITALITY
– Westfield Liverpool, Liverpool, NSW, Australia, year 2026
– Interior architecture for a gelato shop and dessert bar, 46m2