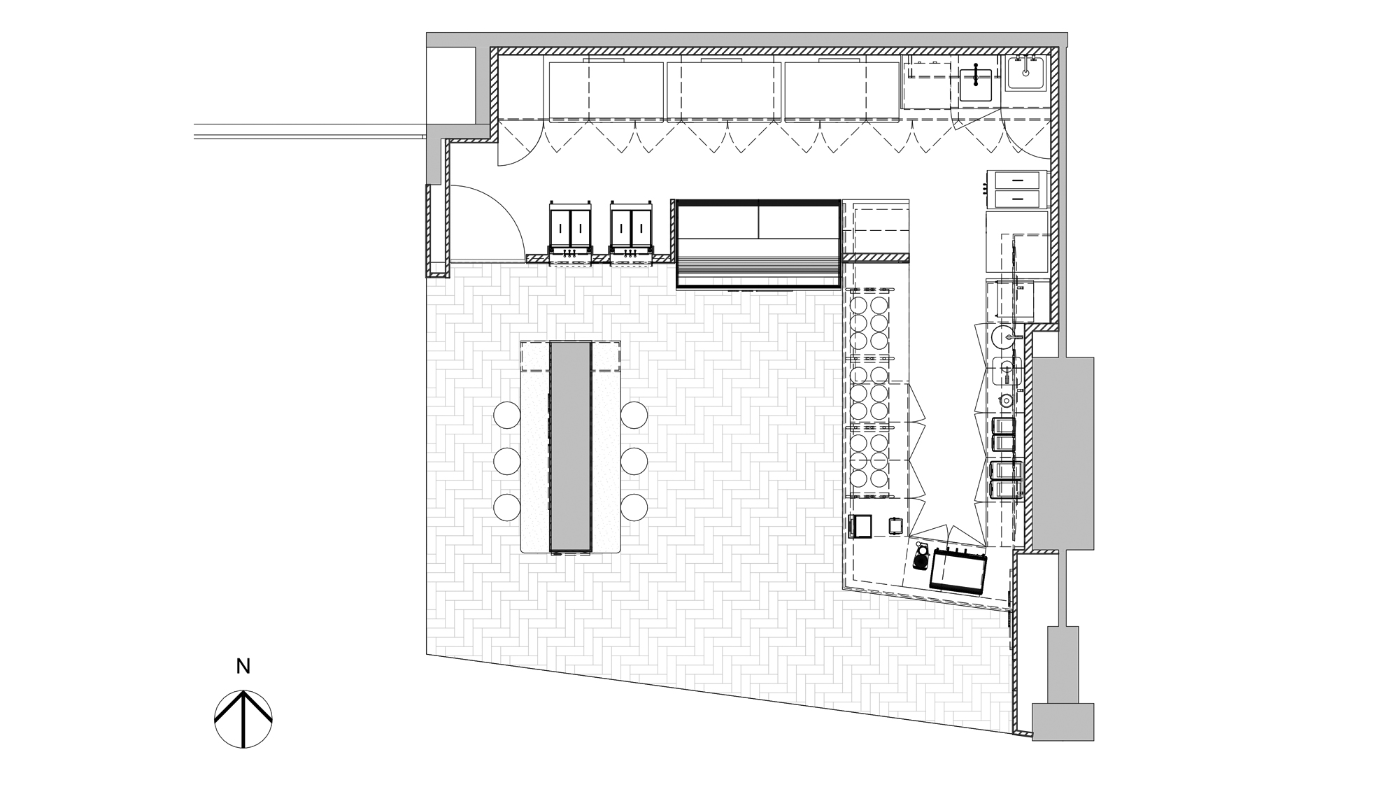
C9 CHOCOLATE & GELATO SURFERS PARADISE
HOSPITALITY
– Cavill Lane, Surfers Paradise, QLD, Australia, year, 2026
– Interior architecture for a gelato shop and dessert bar, 70m2
HOSPITALITY
– Cavill Lane, Surfers Paradise, QLD, Australia, year, 2026
– Interior architecture for a gelato shop and dessert bar, 70m2