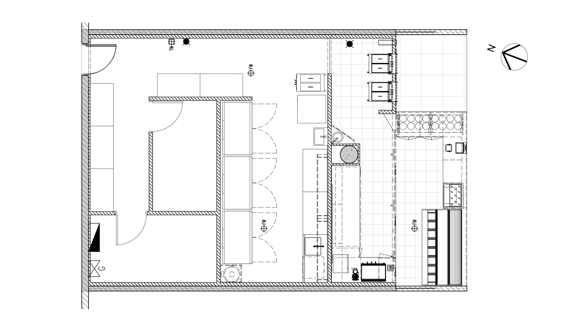
C9 CHOCOLATE & GELATO AITKENVALE
HOSPITALITY
– Townsville Shopping Centre, Aitkenvale, QLD, Australia, year, 2026
– Interior architecture for a gelato shop and dessert bar, 77m2
HOSPITALITY
– Townsville Shopping Centre, Aitkenvale, QLD, Australia, year, 2026
– Interior architecture for a gelato shop and dessert bar, 77m2