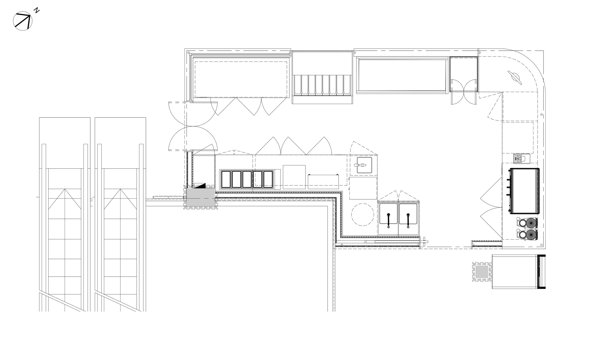
THE SMELLY CHEESECAKE CASTLE MALL
HOSPITALITY
– Castle Mall shopping centre, Castle Hill, NSW, Australia, year 2026
– Interior architecture for a kiosk, takeaway food. 23m2
HOSPITALITY
– Castle Mall shopping centre, Castle Hill, NSW, Australia, year 2026
– Interior architecture for a kiosk, takeaway food. 23m2