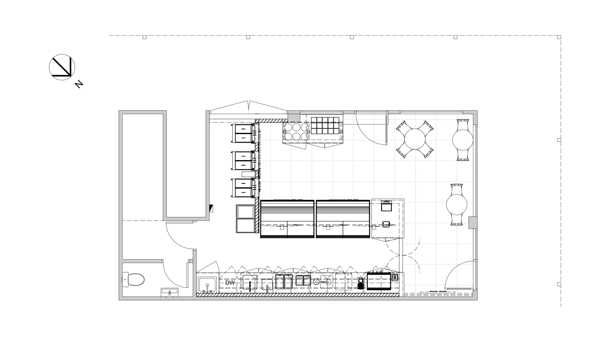
C9 CHOCOLATE & GELATO NORTH RICHMOND

HOSPITALITY

– North Richmond, NSW, Australia, year 2026

– Interior architecture for a gelato shop and dessert bar, 45m2