HRA ARCHITECTURE
  • HOME
  • PROJECTS
  • BLOG
  • CONTACT
Select Page

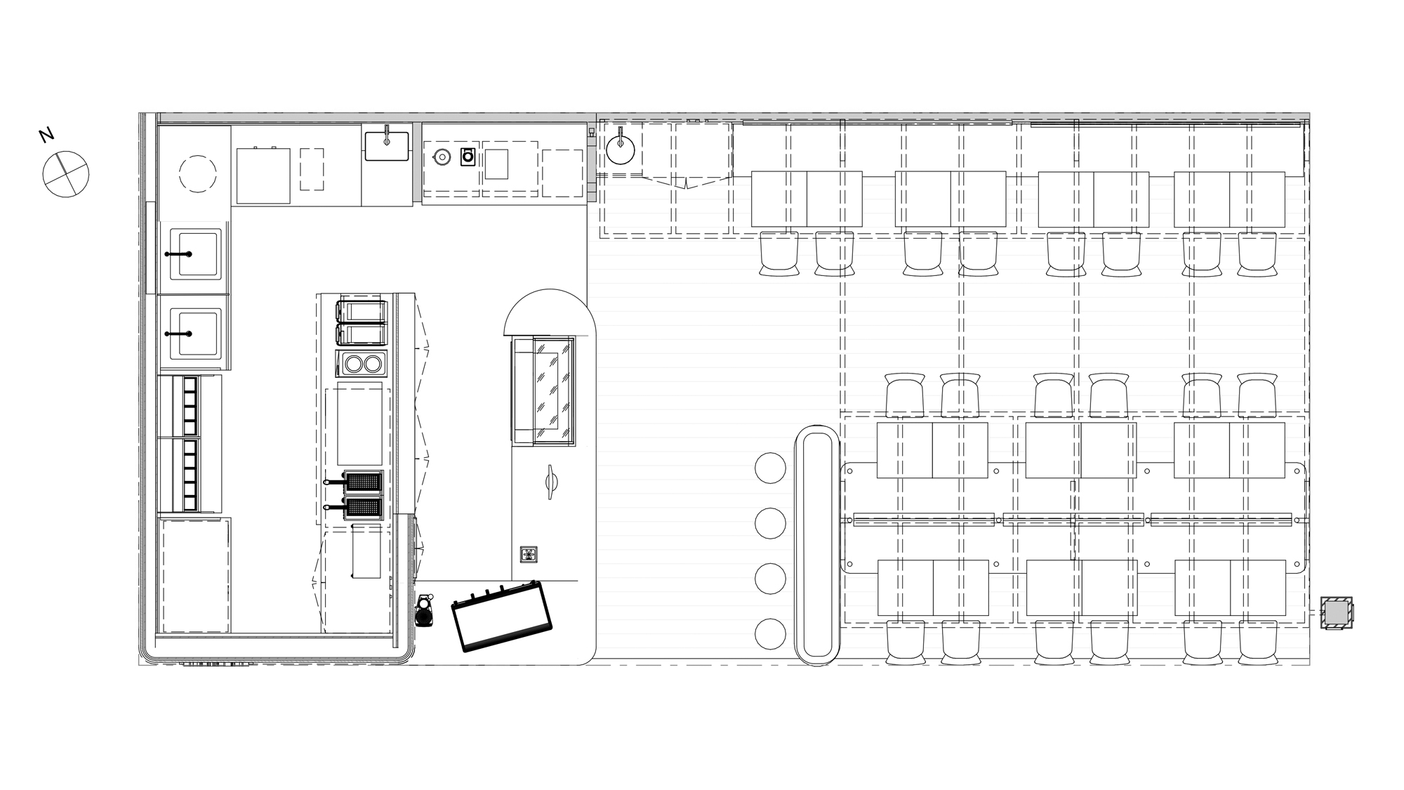
BRUNCH N BREW ERINA

HOSPITALITY

– Erina Fair Shopping Centre, Erina, NSW, Australia, year 2026

– Cafe / kiosk design, 76m2

← Previous project Next project →

All rights reserved HRA Architecture © 2022 Implemented by www.partnerdigital.cl