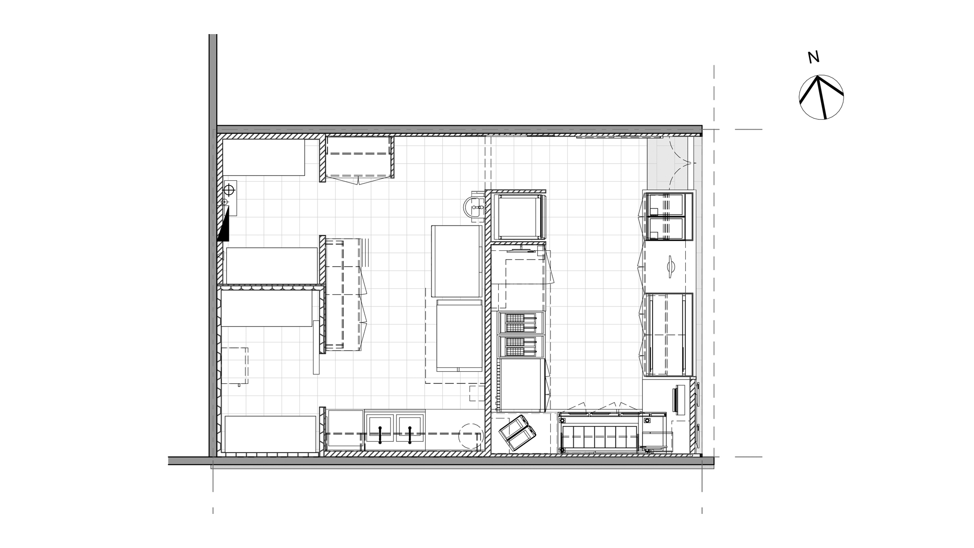
CAMY'S CHARGRILL CHICKEN BALGOWLAH
HOSPITALITY
– Balgowlah Village, Balgowlah, NSW, Australia, year 2026
– Interior architecture for a takeaway food shop, 45m2
HOSPITALITY
– Balgowlah Village, Balgowlah, NSW, Australia, year 2026
– Interior architecture for a takeaway food shop, 45m2