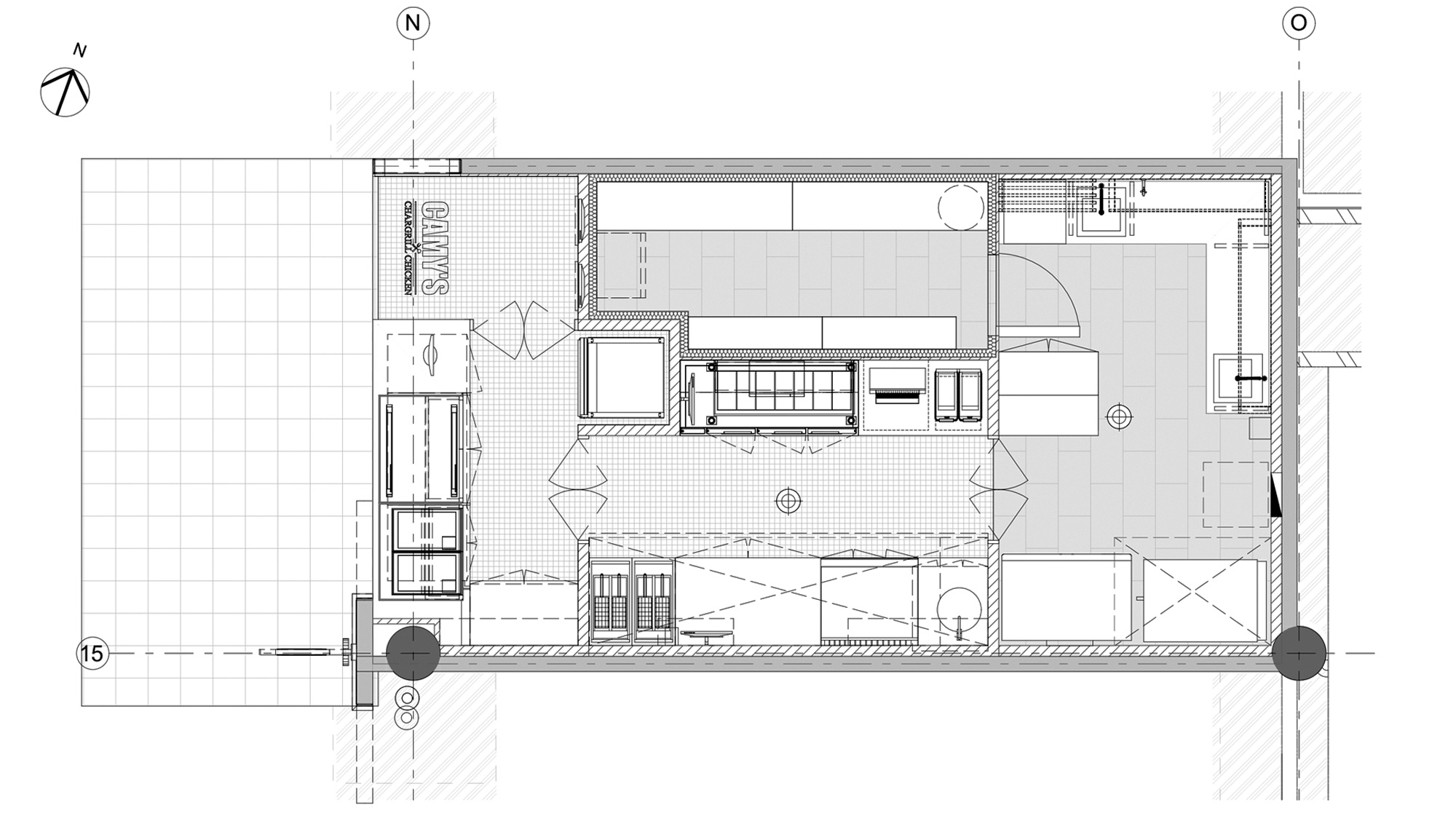
CAMY'S CHARGRILL CHICKEN CHATSWOOD
Hospitality
– Chatswood Chase shopping centre, Chatswood, NSW, Australia, year 2024
– Interior architecture for a take away food premises. 39 m2
Hospitality
– Chatswood Chase shopping centre, Chatswood, NSW, Australia, year 2024
– Interior architecture for a take away food premises. 39 m2