HRA ARCHITECTURE
  • HOME
  • PROJECTS
  • BLOG
  • CONTACT
Select Page

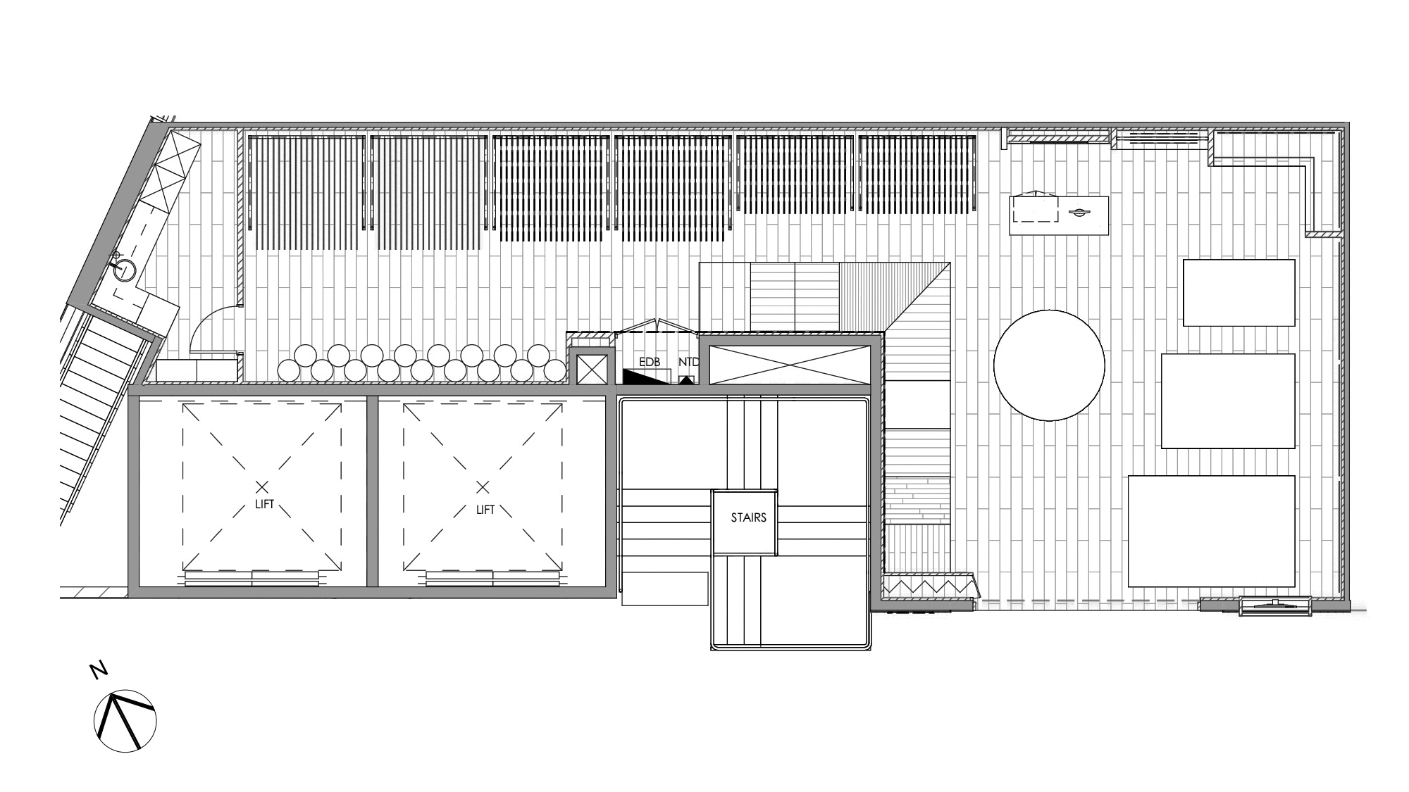
THE HILLS, RUG GALLERY

Retail.

– Kellyville West, Kellyville, NSW, Australia, 2023

– Interior architecture for a Persian rugs and flooring retail. 132 m2

← Previous project Next project →

All rights reserved HRA Architecture © 2022 Implemented by www.partnerdigital.cl