HRA ARCHITECTURE
  • HOME
  • PROJECTS
  • BLOG
  • CONTACT
Select Page

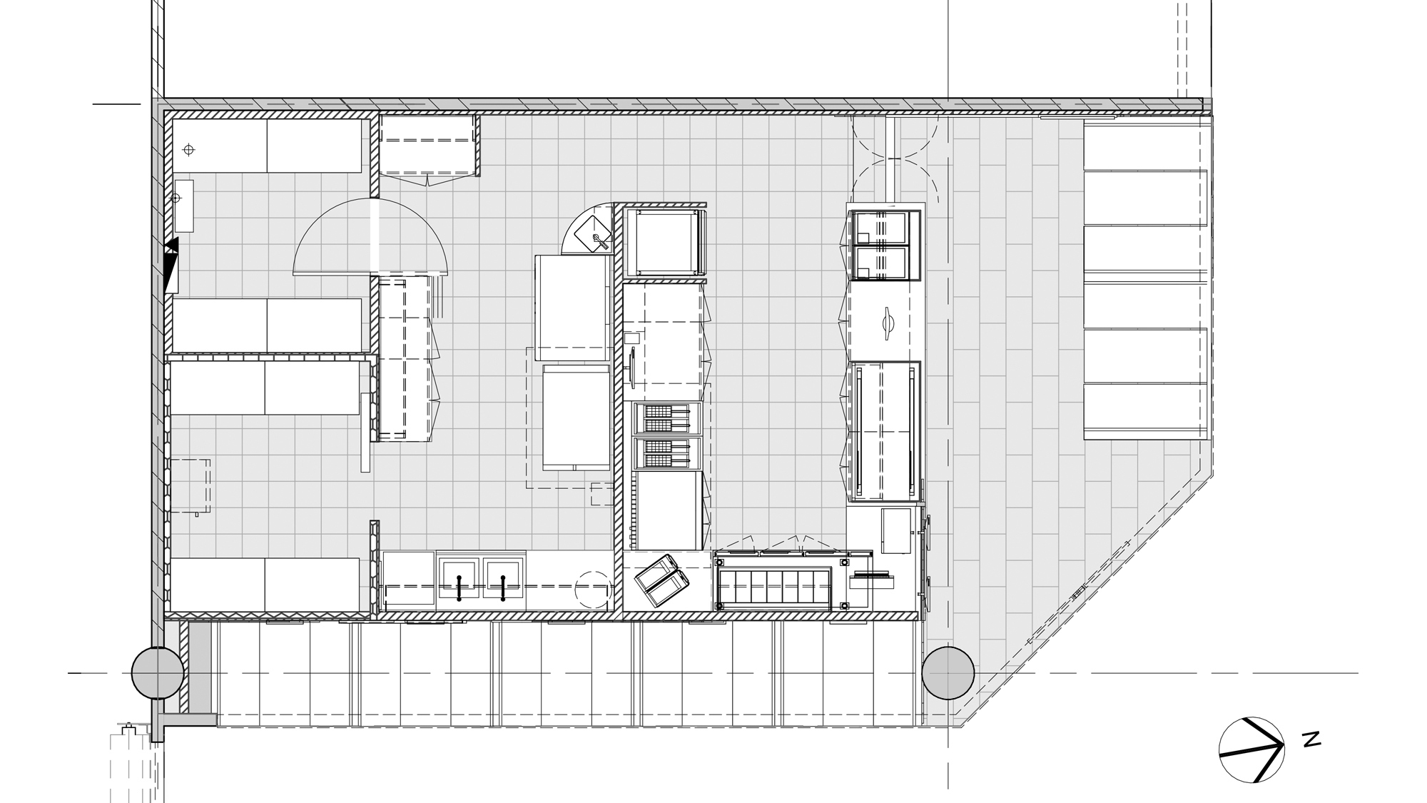
CAMY'S CHARGRILL CHICKEN, HORNSBY

Hospitality

– Westfield Hornsby, Hornsby, NSW, Australia, year 2025

– Interior architecture for a restaurant. 80 m2

← Previous project Next project →

All rights reserved HRA Architecture © 2022 Implemented by www.partnerdigital.cl