HRA ARCHITECTURE
  • HOME
  • PROJECTS
  • BLOG
  • CONTACT
Select Page

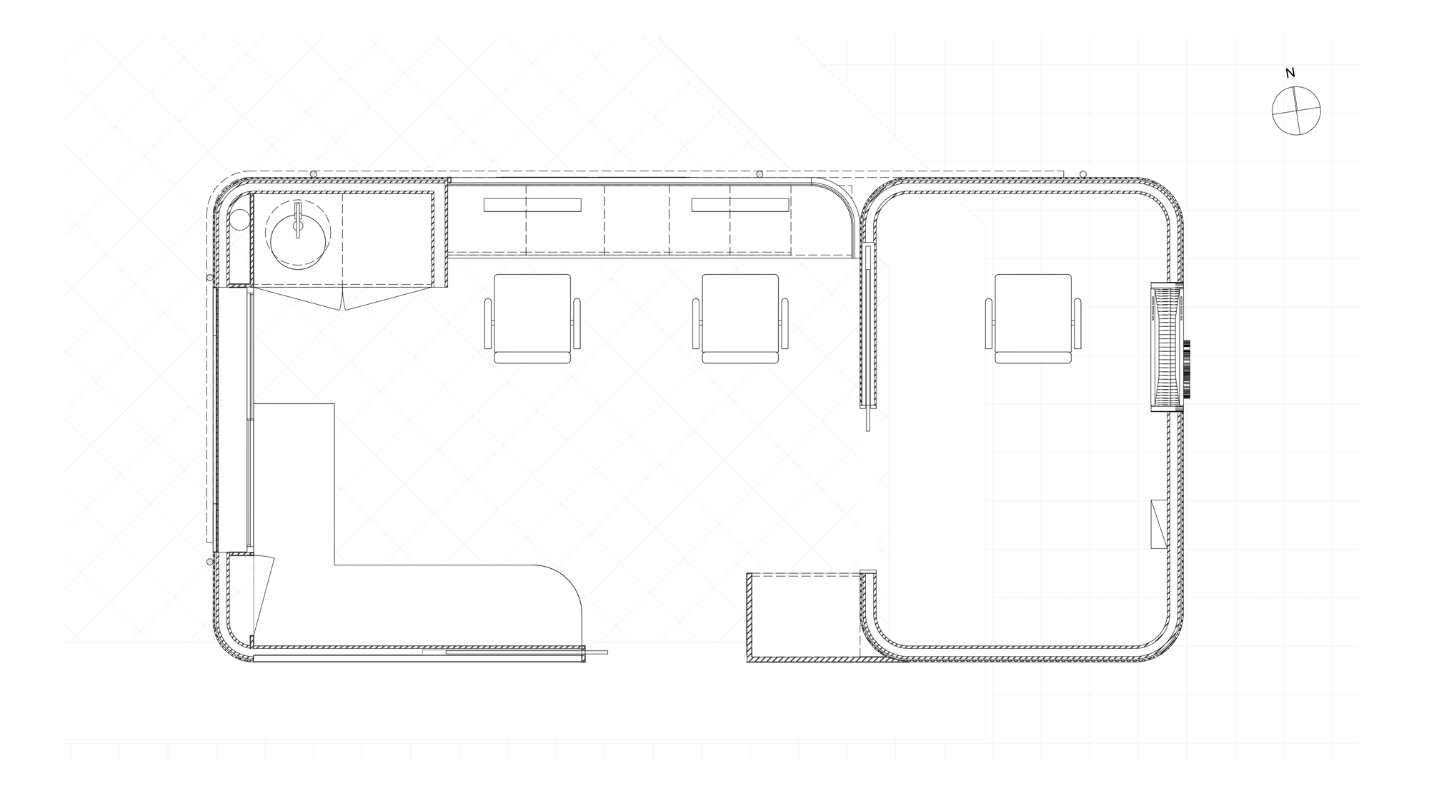
GO GLAM MENAI

RETAIL

– HomeCo Menai Marketplace, Menai, NSW, Australia, year, 2025

– Cosmetic treatment kiosk design, 18m2

← Previous project Next project →

All rights reserved HRA Architecture © 2022 Implemented by www.partnerdigital.cl