C9 CHOCOLATE & GELATO MERRYLANDS
HOSPITALITY
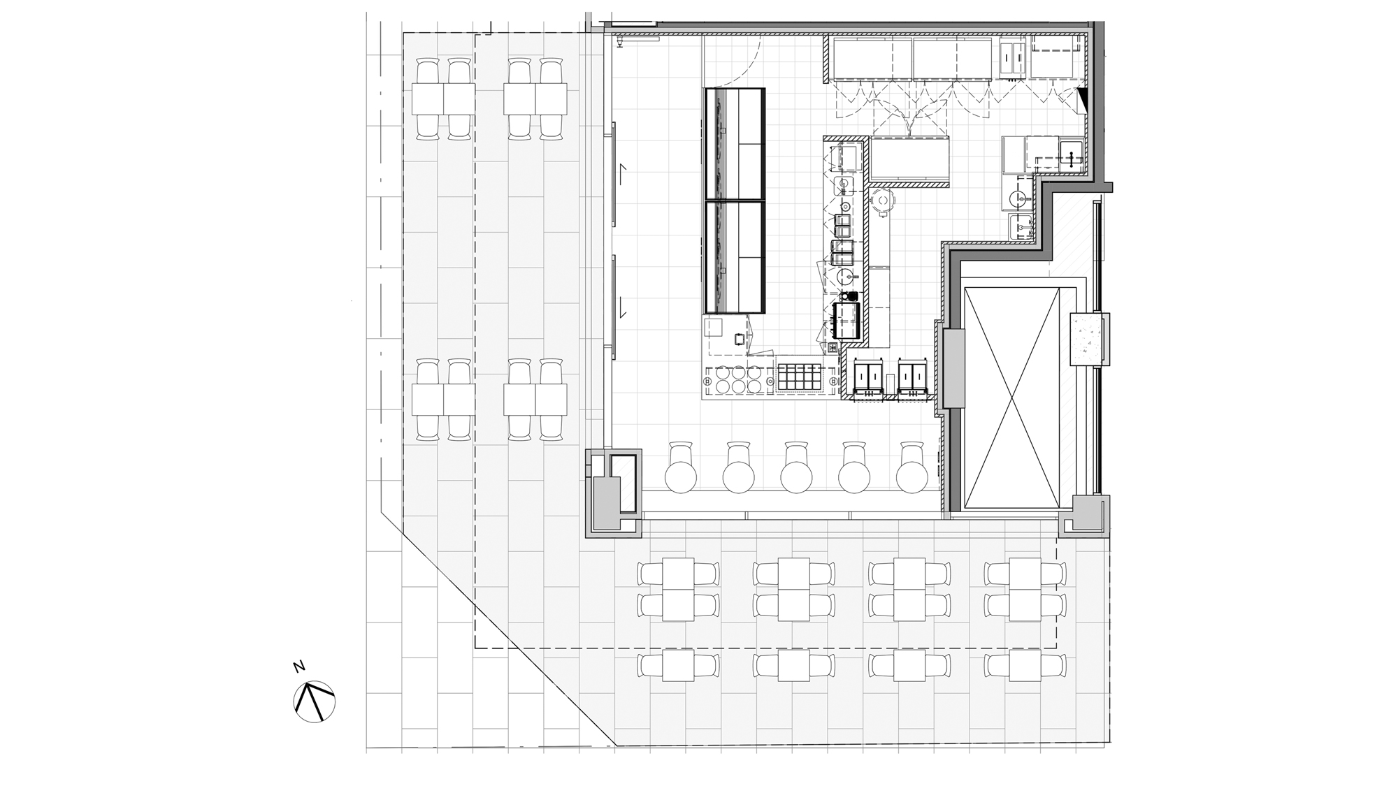
– Mason & Main, Merrylands, NSW, Australia, year, 2025
– Interior architecture for a gelato shop and dessert bar, 70m2
HOSPITALITY
– Mason & Main, Merrylands, NSW, Australia, year, 2025
– Interior architecture for a gelato shop and dessert bar, 70m2