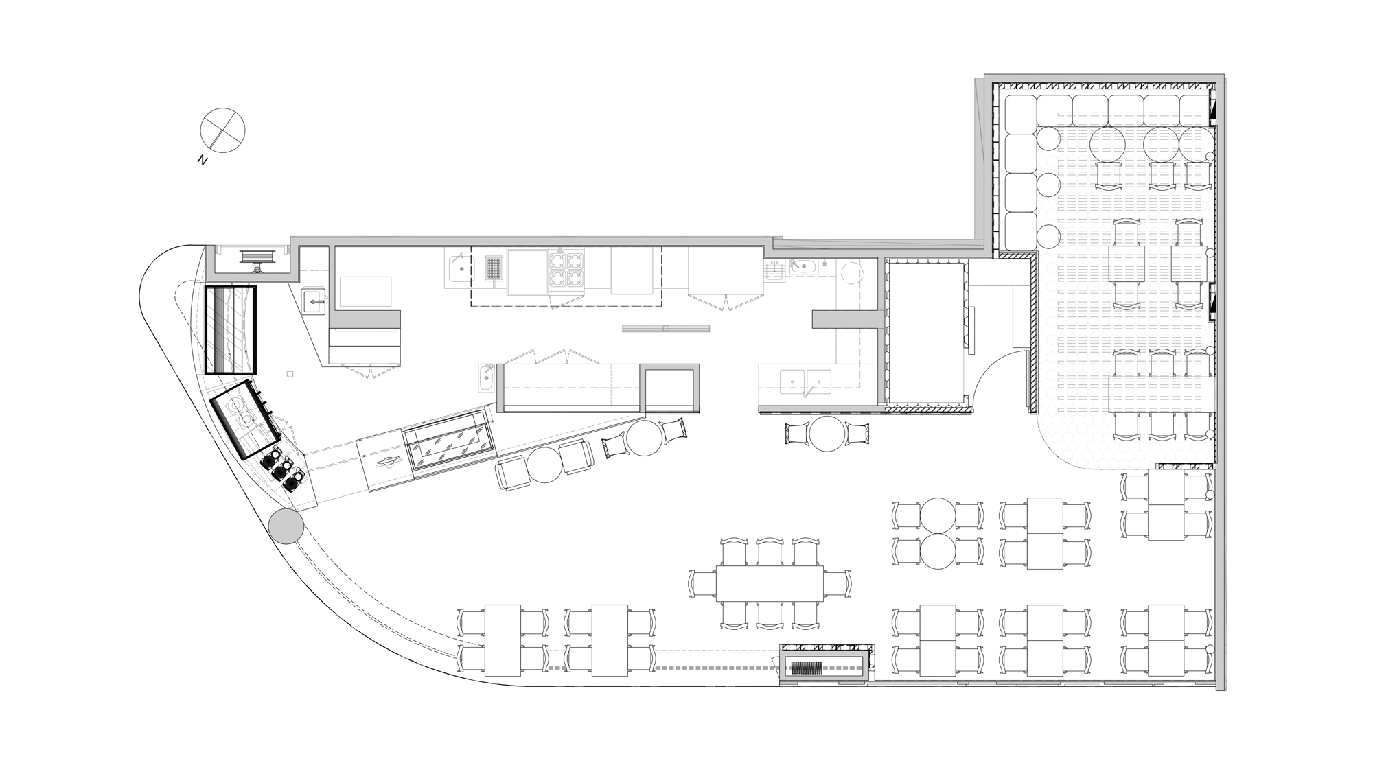
THE SMELLY CHEESECAKE WENTWORTH POINT
HOSPITALITY
– Marina Square shopping centre, Wentworth Point, NSW, Australia, year 2025
– Interior architecture for a cafe, 129m2
HOSPITALITY
– Marina Square shopping centre, Wentworth Point, NSW, Australia, year 2025
– Interior architecture for a cafe, 129m2