HRA ARCHITECTURE
  • HOME
  • PROJECTS
  • BLOG
  • CONTACT
Select Page

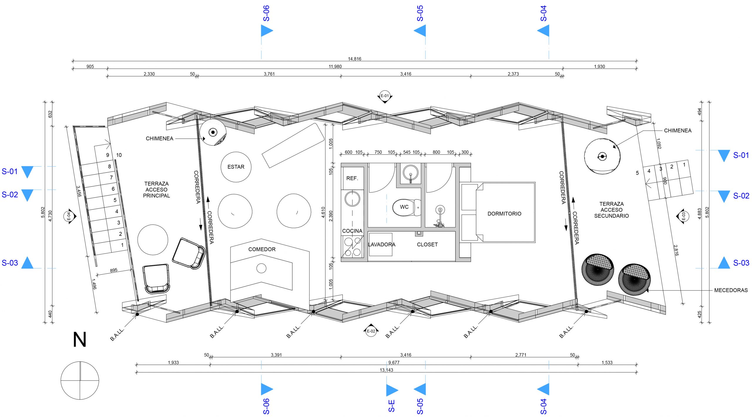
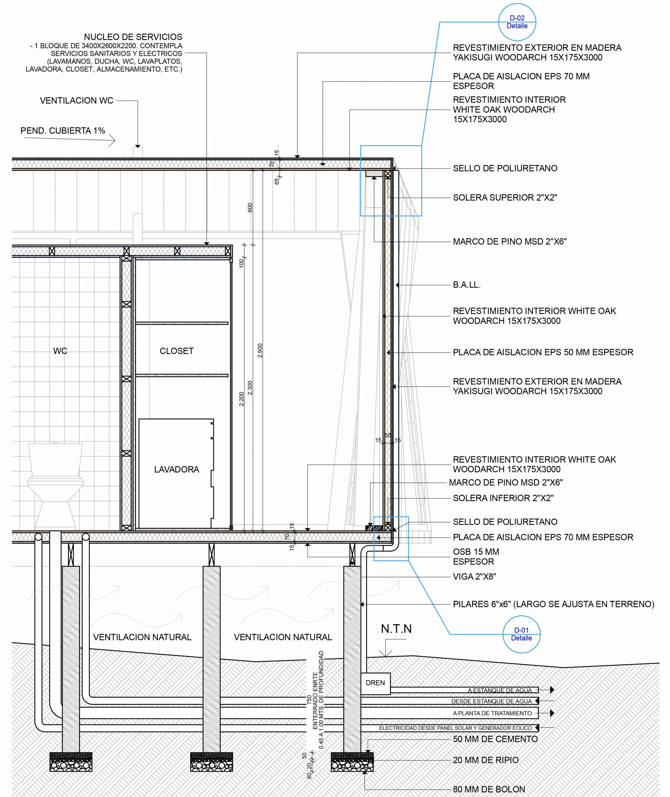
GEOMETRIC HUT

RESIDENTIAL

– Valdivia, Chile 2021

– Hut / cabin for 2 people. 49 M2

← Previous project Next project →

All rights reserved HRA Architecture © 2022 Implemented by www.partnerdigital.cl