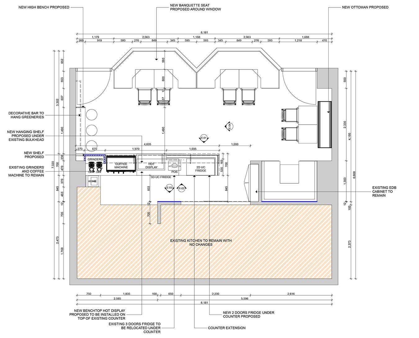
SHAHI MAHAL, INDIAN RESTAURANT
HOSPITALITY
– Terrigal, Central Coast, NSW, Australia 2021
– Hospitality, Indian restaurant, 56 m2
HOSPITALITY
– Terrigal, Central Coast, NSW, Australia 2021
– Hospitality, Indian restaurant, 56 m2