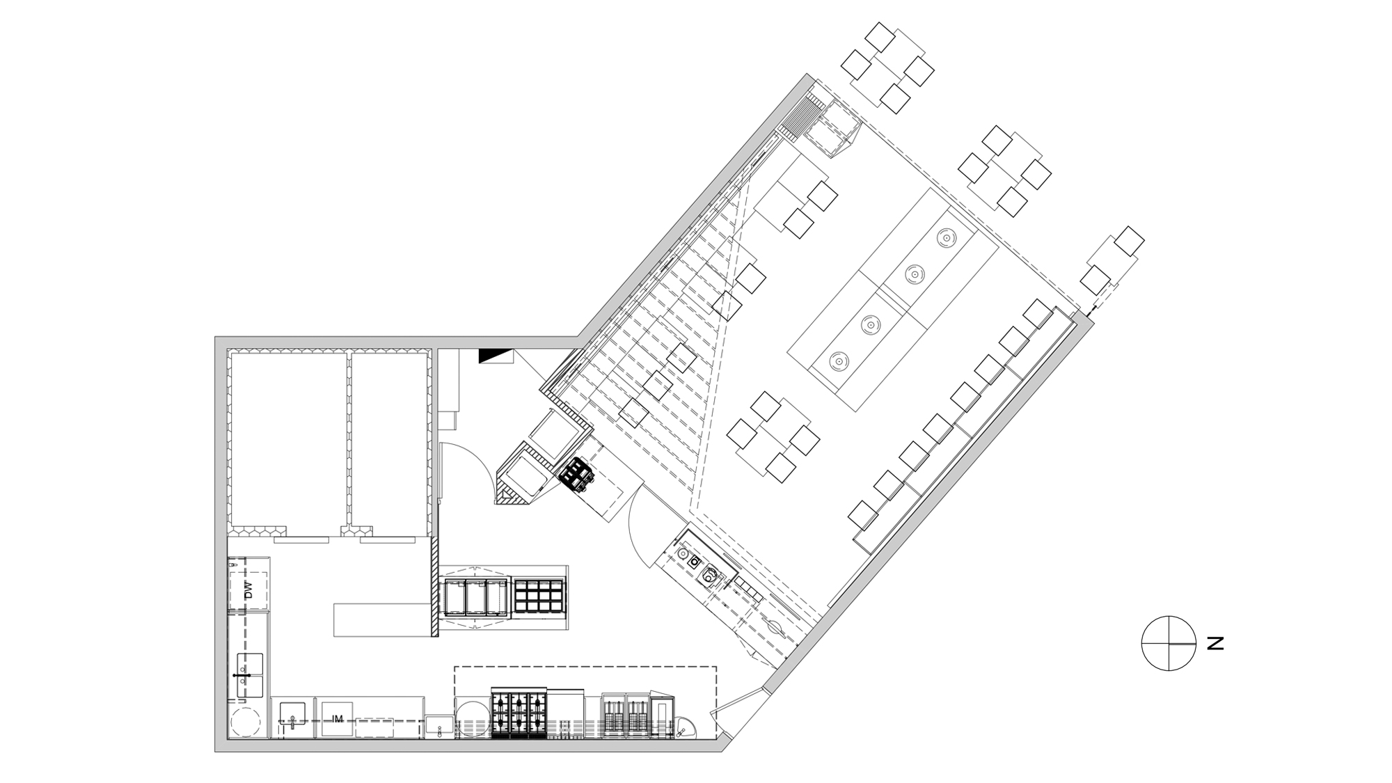
OLA MEXICAN GRILL, GLENMORE PARK
Hospitality
– HomeCo Glenmore Park Town Centre, Glenmore Park, NSW, Australia, year 2025
– Interior architecture for a Mexican restaurant. 90m2
Hospitality
– HomeCo Glenmore Park Town Centre, Glenmore Park, NSW, Australia, year 2025
– Interior architecture for a Mexican restaurant. 90m2