HRA ARCHITECTURE
  • HOME
  • PROJECTS
  • BLOG
  • CONTACT
Select Page

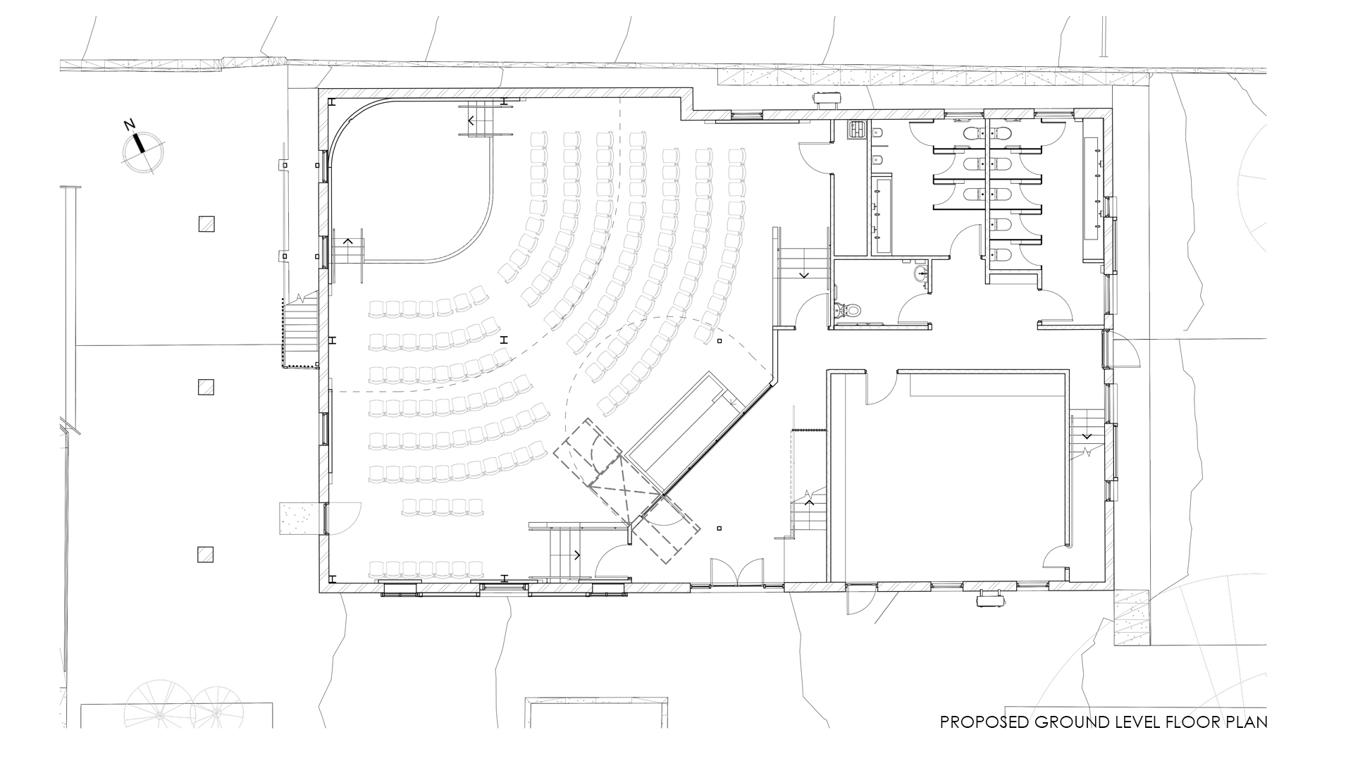
SYDNEY FULL GOSPEL CHURCH

COMMUNITY / PUBLIC BUILDING

– Greenacre, NSW, Australia, year 2025.

– Interior architecture for a Korean Church, 500M2

← Previous project Next project →

All rights reserved HRA Architecture © 2022 Implemented by www.partnerdigital.cl